

Maymar Real estate
Frau Yvette Boerner
003 ···
Nr. anzeigenPreise & Kosten
Lage
Exklusive moderne Villa in der prestigeträchtigen Wohnanlage Altea Hills
Diese außergewöhnliche moderne Villa befindet sich in der prestigeträchtigen, bewachten Wohnanlage Altea Hills, einer der begehrtesten Wohngegenden an der Costa Blanca. Auf einem erhöhten Grundstück gelegen, bietet die Immobilie einen...
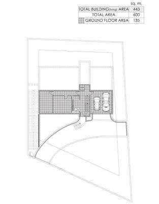
Das Haus
Kategorie
Villa
Baujahr
2025
Energie & Heizung
Warum sehe ich diese Anzeige? – Du siehst diese Anzeige basierend auf Ihrer Navigation auf unserer Website und den Suchkriterien, die du verwendet hast.
Energieausweis: für diesen Gebäudetyp nicht notwendig
Weitere Energiedaten
Heizungsart
Fußbodenheizung, offener Kamin, Zentralheizung
Details
Objektbeschreibung
Die Villa wurde mit moderner Architektur und klaren Linien entworfen und verbindet Innen- und Außenbereiche nahtlos miteinander. Große, raumhohe Fenster lassen reichlich Tageslicht in die Innenräume strömen, maximieren den atemberaubenden Meerblick und ermöglichen den direkten Zugang zu den Terrassen und...
Weitere Informationen
Heizungsart:
Heizkoerper
Anbieter der Immobilie

Online-ID: 2nnu75y
Referenznummer: SP1513
Finde Angebote wie dieses
Hier geht es zu unserem Impressum, den Allgemeinen Geschäftsbedingungen, den Hinweisen zum Datenschutz und nutzungsbasierter Online-Werbung.