
Crozilla.com
SPATIUM real estate
+38 ···
Nr. anzeigenPreise & Kosten
Provision für Käufer
Bitte beachte, das Angebot kann bei Vertragsabschluss die Zahlung einer Provision beinhalten. Weitere Informationen erhältst Du vom Anbieter.
Wohnanlage
Details
Objektbeschreibung
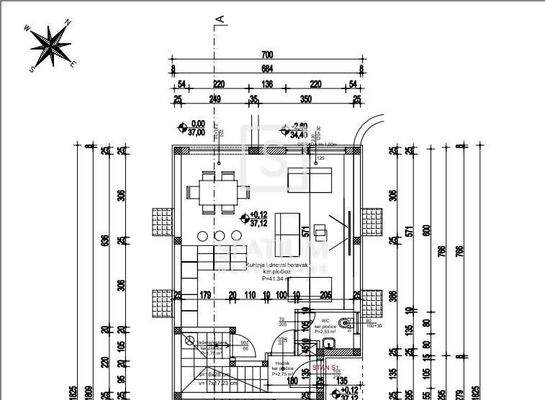
MALINSKA wurde uns eine Wohneinheit in einem Doppelfamilienhaus mit einer Fläche von 155,17 m2, bestehend aus Keller, Erdgeschoss und Obergeschoss, angeboten. Im Untergeschoss befinden sich eine Garage und ein Abstellraum mit einer Gesamtfläche von 54,37 m2. Das Erdgeschoss besteht aus einer Eingangshalle, einer Speisekammer...
Weitere Informationen
Stichworte
Anzahl der Schlafzimmer: 3, Anzahl der Badezimmer: 2, 1 Etagen
Anbieter der Immobilie
Crozilla.com
Nova cesta 60, 10000 ZAGREB
Online-ID: 2nntr59
Referenznummer: 19190299_0
Finde Angebote wie dieses
Hier geht es zu unserem Impressum, den Allgemeinen Geschäftsbedingungen, den Hinweisen zum Datenschutz und nutzungsbasierter Online-Werbung.