

KHC Bauträger GmbH
Frau Janet Schrepel
037 ···
Nr. anzeigenPreise & Kosten
Provision für Käufer
provisionsfrei
Lage
Das schöne Grundstück befindet sich im Norden von Meerane und ist an einem Park gelegen.
Der Preis versteht sich inklusive Grundstück und exklusive Baunebenkosten. Wir planen jedes Kern-Haus individuell nach Ihren Wünschen und passen es in das Grundstück ein.
Das Haus
Kategorie
Einfamilienhaus
Baujahr
2026
Energie & Heizung
Warum sehe ich diese Anzeige? – Du siehst diese Anzeige basierend auf Ihrer Navigation auf unserer Website und den Suchkriterien, die du verwendet hast.
Energieausweistyp
Bedarfsausweis
Gebäudetyp
Wohngebäude
Baujahr laut Energieausweis
2026
Gültigkeit
seit 04.01.2016
Effizienzklasse
A+
Weitere Energiedaten
Heizungsart
Zentralheizung
Details
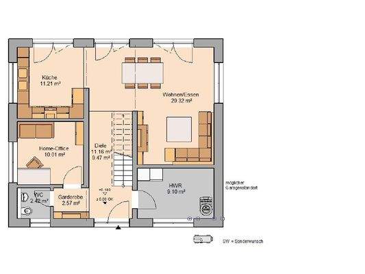
Objektbeschreibung
Der lichtdurchflutete Wohntraum 'Signus' lässt keine Wünsche offen. Auf zwei Vollgeschossen findet die ganze Familie Platz, um sich zu entspannen und frei zu entfalten. Die bodentiefen Fensterelemente machen das Haus zu einem Wohnerlebnis und zeigen die Großzügigkeit dieser zeitlosen Stadtvilla.
Gleich im...
Ausstattung
5 Zimmer, Küche, Diele, WC, Flur, Bad, Ankleide, Hauswirtschaftsraum, Garderobe
Das gezeigte Traumhaus im Überblick:
+ Massivhaus als Ausbauhaus im Sinne der Bau- und Ausstattungsbeschreibung "Paulo"
+ Gebäudehülle ist für Effizienzhaus 40 optimiert
+ Inklusive Bodenplatte
+ Architekten- und...
Weitere Informationen
Sonstiges
Kern-Haus
Kern-Haus baut individuelle und massive Architektenhäuser zu einem attraktiven Preis-Leistungs-Verhältnis - und das bereits mit einer Erfahrung seit 1980.
Maximale Sicherheit bei Kern-Haus:
+ 10 Jahre Gewährleistung auf die wesentlichen Bauleistungen
+ Bis zu 18 Monate...
Anbieter der Immobilie

Online-ID: 2nnsu5h
Referenznummer: KH 87_23
Finde Angebote wie dieses
Hier geht es zu unserem Impressum, den Allgemeinen Geschäftsbedingungen, den Hinweisen zum Datenschutz und nutzungsbasierter Online-Werbung.