
MAKRA-BAU GmbH
038 ···
Nr. anzeigenPreise & Kosten
Provision für Käufer
provisionsfrei
Lage
Das Wohngebiet Kammerhof liegt in ruhiger und grüner Lage der Kurstadt Bad Doberan und zeichnet sich durch eine angenehme Wohnatmosphäre mit gepflegter Wohnbebauung aus. Die Innenstadt mit Einkaufsmöglichkeiten, Cafés und Dienstleistungen ist in wenigen Minuten erreichbar. Wahrzeichen der Stadt ist das beeindruckende...
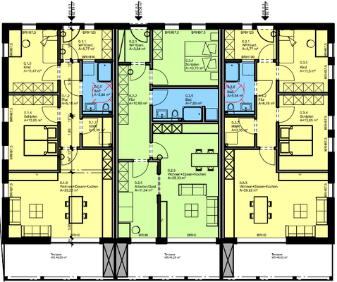
Die Wohnung
Wohnungslage
Erdgeschoss
Bezug
2027
Wohnanlage
Energie & Heizung
Warum sehe ich diese Anzeige? – Du siehst diese Anzeige basierend auf Ihrer Navigation auf unserer Website und den Suchkriterien, die du verwendet hast.
Weitere Energiedaten
Heizungsart
Fußbodenheizung, Luft-/Wasser-Wärmepumpe
Details
Objektbeschreibung
Ostseenahes leben in Bad Doberan, in hochwertiger Eigentumswohnung
Unser Neubauprojekt MFH Kühnemannweg entsteht zurzeit unweit der Ostseebäder Heiligendamm und Kühlungsborn im Baugebiet Kammerhof. Hier errichten wir 16 hochwertige Wohneinheiten in 2 Wohnhäusern. Die beiden Häuser erhalten eine Putzfassade, Aufzug...
Ausstattung
- Putzfassade mit modernen Fassadenelementen
- ökologische Dämmstoffe in allen Wänden
- sichtbare Brettschichtholzdecken im EG und OG
- Dacheindeckung mit Tondachsteinen
- Gauben zur optimalen Belichtung der Räume im DG
- großzügige Balkon- und Terrassenanlagen
- Aufzug und überdachter Laubengang
-...
Weitere Informationen
Stichworte
Zustand: Erstbezug, projektiert
Sonstiges: Neubaustandard
Anbieter der Immobilie
Online-ID: 2nnr55w
Referenznummer: WE 02
Finde Angebote wie dieses
Hier geht es zu unserem Impressum, den Allgemeinen Geschäftsbedingungen, den Hinweisen zum Datenschutz und nutzungsbasierter Online-Werbung.