
Italien Hauskauf
Frau Nicole Siedersberger-King
004 ···
Nr. anzeigenPreise & Kosten
Provision für Käufer
f.d. Käufer 3,66 % inkl. MwSt. inkl. MwSt.
Lage
Mercatino Conca, Pesaro und Urbino, Marken.
Das Haus
Kategorie
Bauernhaus
Details
Objektbeschreibung
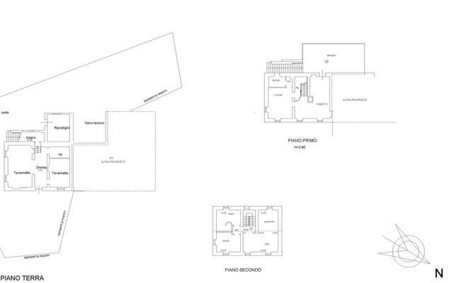
Komplex aus drei Gebäuden und einem zweistöckigen Anbau, umgeben von Wäldern, landwirtschaftlichen Flächen und einem weiten Panorama mit absoluter Privatsphäre und Ruhe.
Gebäude 1: RENOVIERTES BAUERNHAUS - 330 m²
Das Landhaus wurde 2013 umfassend renoviert und befindet sich in sehr gutem Zustand.
Im...
Weitere Informationen
Stichworte
Anzahl der Schlafzimmer: 3, Anzahl der Badezimmer: 3
Anbieter der Immobilie
Italien Hauskauf
Tal 44, 80331 München
Online-ID: 2nnqr5c
Referenznummer: IT-CA455-KA
Finde Angebote wie dieses
Hier geht es zu unserem Impressum, den Allgemeinen Geschäftsbedingungen, den Hinweisen zum Datenschutz und nutzungsbasierter Online-Werbung.