
Wohnungsbau Aalen GmbH
Frau Melanie Färber
+49 ···
Nr. anzeigenPreise & Kosten
Provision für Käufer
provisionsfrei
Lage
Naturnahes Wohnen in der Ortsmitte von Unterkochen.
Die Zehntscheuergasse liegt in einer idealen Lage, die sowohl naturnah als auch zentrumsnah ist. Genießen Sie die Ruhe und Schönheit der Natur, während Sie von der Nähe zur Aalener Innenstadt profitieren.
Die Umgebung bietet zahlreiche Freizeitmöglichkeiten wie...
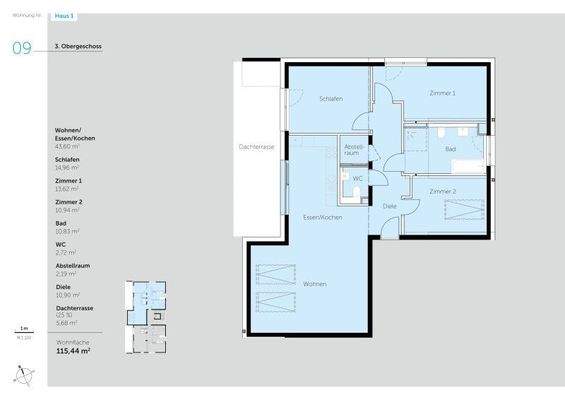
Die Wohnung
Kategorie
Penthouse
Wohnanlage
Energie & Heizung
Warum sehe ich diese Anzeige? – Du siehst diese Anzeige basierend auf Ihrer Navigation auf unserer Website und den Suchkriterien, die du verwendet hast.
Energieausweistyp
Bedarfsausweis
Gebäudetyp
Wohngebäude
Baujahr laut Energieausweis
2025
Gültigkeit
bis 22.07.2035
Effizienzklasse
C
Endenergiebedarf
76,10 kWh/(m²·a)
Details
Ausstattung
- Pflegeleichter Vinylboden in Holzoptik
- Fußbodenheizung
- Fenster mit Dreifachverglasung
- Elektrische Rollläden
- Sanitärausstattung der Serie CARA
- Energiestandard KfW 40
- Kellerabteil zu jeder Wohnung
- 1 Außenstellplatz je Wohnung
Weitere Informationen
Sonstiges
Die Gebäude entsprechen dem Energiestandard KfW 40 EE und erfüllen damit höchste Anforderungen an Energieeffizienz und Nachhaltigkeit.
Der Standard steht für einen besonders niedrigen Energiebedarf und den Einsatz erneuerbarer Energien zur Wärmeversorgung. Dies sorgt nicht nur für ein angenehmes Wohnklima...
Anbieter der Immobilie
Wohnungsbau Aalen GmbH
Südlicher Stadtgraben 13, 73430 Aalen
Online-ID: 2nnlt5d
Referenznummer: 017/09
Finde Angebote wie dieses
Hier geht es zu unserem Impressum, den Allgemeinen Geschäftsbedingungen, den Hinweisen zum Datenschutz und nutzungsbasierter Online-Werbung.