Volksbank Westmünsterland Immobilien GmbH

Herr Gerrit Scheffer-Boichorst

*Idealer Standort für Produktion & Gewerbe* - funktionale Halle zur Anmietung in Raesfeld-Erle

auf Anfrage
Nettomiete
1 461,73 m²
Fläche ca.
k.A.
Teilbare Fläche
k.A.
Grundstücksfl.

Der Anbieter dieses Objekts hat gegenüber der AVIV Germany GmbH als Betreiber dieses Online-Marktplatzes erklärt, nicht als Unternehmer im Sinne des § 1 KSchG zu handeln. Die im Verbraucherschutzrecht der Union verankerten Verbraucherrechte (insbesondere Informationspflichten und Rücktritts- bzw. Widerrufsrechte) finden auf den Vertrag zwischen dem Anbieter des Objekts und Ihnen (dem Interessenten) keine Anwendung.

Gewerblicher Anbieter

Der Anbieter dieses Objekts hat gegenüber der AVIV Germany GmbH als Betreiber dieses Online-Marktplatzes erklärt, als Unternehmer im Sinne des § 1 KSchG zu handeln.

AdresseStraße nicht freigegeben
46348 Raesfeld 
(Erle)
Auf Karte ansehen

Preise & Kosten

Nettomiete auf Anfrage

Provision für Mieter

2,38 KM inkl. MwSt.

Lage

Die Produktionshalle befindet sich in Raesfeld-Erle im Kreis Borken. Der Standort liegt im Ortsteil Erle, einem etablierten Gewerbe- und Mischgebiet mit handwerklicher und mittelständischer Prägung.

Die verkehrliche Anbindung ist gut: Über die nahegelegenen Verbindungen in die umliegenden Städte wie Borken, Dorsten...

Mehr anzeigen

Die Industriefläche

Kategorie

Lagerhalle

Baujahr

2002

Bezug

01.05.2026

Energie & Heizung

A+
A
B
C
D
E
F
G
H
0 25 50 75 100 125 150 175 200 225 250 +

Energieausweistyp

Bedarfsausweis

Gebäudetyp

Wohngebäude

Baujahr laut Energieausweis

2002

Wesentliche Energieträger

Elektroenergie

Gültigkeit

29.01.2026 bis 28.01.2036

Effizienzklasse

B

Endenergiebedarf

50,20 kWh/(m²·a)

Weitere Energiedaten

Haustyp

Fertighaus

Energieträger

Elektro

Heizungsart

Luft-/Wasser-Wärmepumpe

Details

Objektbeschreibung

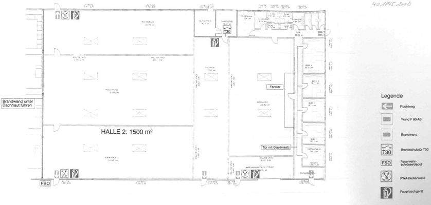
Zur Anmietung steht diese moderne Produktionshalle in Reasfeld-Erle. Die Halle 1 verfügt über eine Nutzfläche von ca. 1.500,00 m² und eignet sich ideal für Produktions-, Lager- und Logistikzwecke.

Das Gebäude wurde im Baujahr 2002 errichtet und befindet sich in einem funktionalen und gepflegten Zustand. Ergänzend zur...

Mehr anzeigen

Ausstattung

- Produktions- und Lagerhalle in Skelettbauweise (Stahl) mit Flachdach (2° Dachneigung)
- Trinkwassergewinnung durch eigenen Brunnen
- vorgelagertes Freilager / Überdachung ca. 100 m x 25 m
- Außenwände mit Thermowand / Büro zusätzl. Vorsatzschale
- Wärmepumpe
- Büroraum ca. 28,86 m²
- Aufenthaltsraum /...

Mehr anzeigen

Weitere Informationen

Sonstiges
Es liegt ein Energiebedarfsausweis für die Halle vor
Hauptenergieträger: Strom-Mix
Endenergiebedarf Wärme: 50,2 kWh/(m²*a)
Baujahr Gebäude: 2002
Baujahr Wärmeerzeuger: 2025

Sie haben Fragen zum Angebot oder wünschen eine Besichtigung? Herr Scheffer-Boichorst steht Ihnen gerne zur...

Mehr anzeigen

Anbieter der Immobilie

Partner

Volksbank Westmünsterland Immobilien GmbH

Kupferstraße 35, 48653 Coesfeld

user

Herr Gerrit Scheffer-Boichorst

Dein Ansprechpartner

Anbieter-Website Anbieter-Profil Anbieter-Impressum

Online-ID: 2nnlm5d

Referenznummer: 26-2914

Finde Angebote wie dieses

imageimageimage

Hier geht es zu unserem Impressum, den Allgemeinen Geschäftsbedingungen, den Hinweisen zum Datenschutz und nutzungsbasierter Online-Werbung.