
S Immobilienpartner GmbH
Herr Dennis Grubisic
004 ···
Nr. anzeigenPreise & Kosten
Provision für Mieter
3,57 Monatsnettomieten inkl. USt. inkl. MwSt.
Warum sehe ich diese Anzeige? – Du siehst diese Anzeige basierend auf Ihrer Navigation auf unserer Website und den Suchkriterien, die du verwendet hast.
Lage
Die Verkaufsfläche befindet sich in zentraler Innenstadtlage von Bergisch Gladbach und profitiert von einer sehr guten Erreichbarkeit sowie einem dichten Angebot an Nahversorgung und Dienstleistungen. Das Umfeld ist geprägt von etablierten Einzelhandelslagen, kurzen Wegen in die City und einer stabilen, wohnortnahen...
Die Ladenfläche
Kategorie
Laden
Baujahr
1978
Energie & Heizung
Warum sehe ich diese Anzeige? – Du siehst diese Anzeige basierend auf Ihrer Navigation auf unserer Website und den Suchkriterien, die du verwendet hast.
Wärme
Strom
Energieausweistyp
Bedarfsausweis
Gebäudetyp
Nicht-Wohngebäude
Baujahr laut Energieausweis
1978
Wesentliche Energieträger
GAS
Gültigkeit
bis 24.02.2036
Endenergiebedarf (Wärme)
200,60 kWh/(m²·a)
Endenergiebedarf (Strom)
39,40 kWh/(m²·a)
Weitere Energiedaten
Energieträger
Gas
Heizungsart
Fußbodenheizung
Details
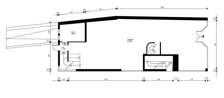
Objektbeschreibung
Dieses attraktive Eckgebäude von 1978 wartet inmitten der Bergisch Gladbacher Innenstadt auf seinen neuen Nutzer für die Erdgeschossfläche. Die insgesamt 228 m² Nutzfläche verteilen sich auf die großzügige Verkaufsfläche mit ca. 172 m², die Nebenfläche von ca. 16 m² sowie die Lagerfläche von ca. 40 m², verteilt auf zwei Räume...
Preisinformation
Nettokaltmiete: 3.200,00 EUR
Weitere Informationen
Stichworte
Lagerfläche: 40,00 m², Gesamtfläche: 228,00 m²
Anbieter der Immobilie
Online-ID: 2nnlk5h
Referenznummer: 88239
Finde Angebote wie dieses
Hier geht es zu unserem Impressum, den Allgemeinen Geschäftsbedingungen, den Hinweisen zum Datenschutz und nutzungsbasierter Online-Werbung.