

SGB-Immobilien GmbH
Herr Thomas Becker
042 ···
Nr. anzeigenPreise & Kosten
Provision für Käufer
5,95%
Lage
Die Baugrundstücke für das Einfamilienhaus befinden sich in einem Wohngebiet im Stadtteil in Bremen. Der Stadtteil zeichnet sich durch seine ruhige und familiäre Atmosphäre aus. In unmittelbarer Nähe befinden sich kleine Geschäfte, Schulen, Kindergärten und Grünflächen, die zum Erholen und Entspannen einladen.
Bremen...
Das Grundstück
Details
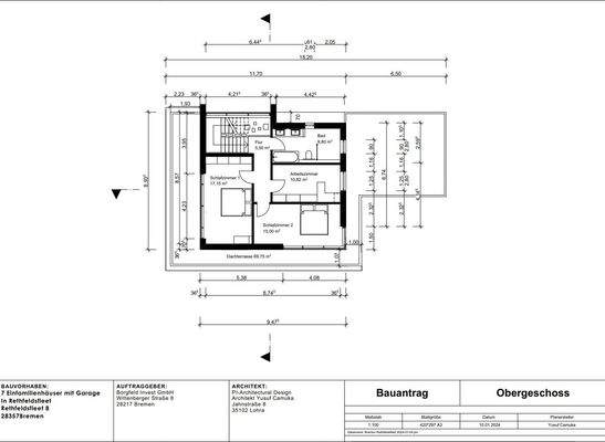
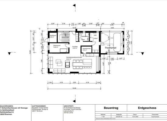
Objektbeschreibung
Das angebotenen Baugrundstück für ein großzügiges Einfamilienhaus mit Doppelgarage und einer großzügigen Grundstücksfläche von 857 Quadratmetern, ist eins von sieben Grundstücken, welche zum Verkauf stehen.. Das Grundstück befindet sich in einer ruhigen und gut angebundenen Gegend, ideal für den Bau eines neuen Wohnhauses...
Weitere Informationen
Sonstiges
Insgesamt werden sieben Baugrundstücke zwischen 840 und 1220 m² angeboten
Die Preis beginnen für die voll erschlossenen Grundstücke bei € 488,940,--
Stichworte
Lage im Wohngebiet
Anbieter der Immobilie
SGB-Immobilien GmbH
Scharnhorststraße 44, 28211 Bremen

Online-ID: 2nnkl5n
Referenznummer: 93369#gtE1X
Finde Angebote wie dieses
Hier geht es zu unserem Impressum, den Allgemeinen Geschäftsbedingungen, den Hinweisen zum Datenschutz und nutzungsbasierter Online-Werbung.