

Sparkasse Passau i.V. der Sparkassen-Immobilien-Vermittlungs-GmbH
Frau Kerstin Schmöller
085 ···
Nr. anzeigenPreise & Kosten
Provision für Käufer
3,57 % inkl. MwSt.
Lage
Haidenhof ist ein Ortsteil der bayrischen Dreiflüssestadt Passau und unterteilt sich in Haidenhof Nord und Haidenhof Süd. Der Ortsteil liegt an der Neuburger Straße zwischen St. Anton und Kohlbruck. Er befindet sich ortsnah zum Klinikum, zur Universität Passau und dem Schulzentrum. Vielfältige Sport- und Freizeitangebote, z.B...
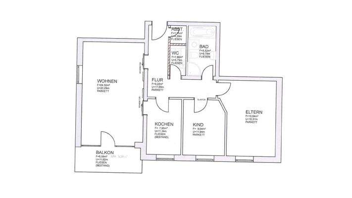
Die Wohnung
Wohnanlage
Energie & Heizung
Warum sehe ich diese Anzeige? – Du siehst diese Anzeige basierend auf Ihrer Navigation auf unserer Website und den Suchkriterien, die du verwendet hast.
Energieausweistyp
Verbrauchsausweis
Gebäudetyp
Wohngebäude
Baujahr laut Energieausweis
1990
Wesentliche Energieträger
Gas
Gültigkeit
12.04.2018 bis 11.04.2028
Effizienzklasse
E
Endenergieverbrauch
146,60 kWh/(m²·a) - Warmwasser enthalten
Weitere Energiedaten
Energieträger
Gas
Heizungsart
Zentralheizung
Details
Objektbeschreibung
Diese schöne und neuwertige Wohnung wartet auf Sie!
Sie befindet sich im 1. Obergeschoss eines gepflegten Mehrfamilienhauses mit insgesamt 8 Einheiten und ist bezugsfrei.
In 2016 wurde die 3-Zimmer-Wohnung vollständig saniert und neu ausgestattet. Seitdem wohnte nur eine Mietpartei darin, die äußerst pfleglich mit der...
Ausstattung
Individuelle Ausstattungsmerkmale:
- Glasschiebetüren
Weitere Informationen
Stichworte
Garage vorhanden, Stellplatz vorhanden, Anzahl der Schlafzimmer: 2, Anzahl der Badezimmer: 1, Anzahl der separaten WCs: 1, Anzahl Balkone: 1, Bundesland: Bayern, modernisiert: 2016
Anbieter der Immobilie
Sparkasse Passau i.V. der Sparkassen-Immobilien-Vermittlungs-GmbH
Nikolastr. 1, 94032 Passau

Online-ID: 2nnje5l
Referenznummer: 1/20/317-317/010878
Finde Angebote wie dieses
Hier geht es zu unserem Impressum, den Allgemeinen Geschäftsbedingungen, den Hinweisen zum Datenschutz und nutzungsbasierter Online-Werbung.