

Waldrich Consulting
Herr Markus Maria Waldrich
022 ···
Nr. anzeigenPreise & Kosten
Provision für Käufer
Entsprechend den gesetzlichen Vorgaben zahlt sowohl der Erwerber wie auch der Verkäufer 3,00 % des beurkundeten Kaufpreises zuzüglich Mehrwertsteuer also 3,57%.
Abschreibung/Anlage
als Kapitalanlage geeignet
Lage
Die Umgebung bietet eine Vielzahl von Freizeitmöglichkeiten, darunter einen Tennis- und Fußballplatz des Vereins Grün-Weiß-Rot sowie malerische Ausflüge zum Rhein. In der Nachbarschaft lädt eine charmante Eisdiele und das Restaurant Haus Massenberg zum Verweilen ein, während die täglichen Besorgungen bequem bei Aldi oder Lidl...
Die Wohnung
Kategorie
Terrassenwohnung
Wohnungslage
Erdgeschoss
Derzeitige Nutzung
vermietet
Wohnanlage
Energie & Heizung
Warum sehe ich diese Anzeige? – Du siehst diese Anzeige basierend auf Ihrer Navigation auf unserer Website und den Suchkriterien, die du verwendet hast.
Energieausweistyp
Bedarfsausweis
Gebäudetyp
Wohngebäude
Baujahr laut Energieausweis
2016
Wesentliche Energieträger
Fernwärme
Gültigkeit
13.01.2017 bis 12.01.2027
Effizienzklasse
B
Endenergiebedarf
72,50 kWh/(m²·a)
Weitere Energiedaten
Energieträger
Gas
Haustyp
KfW 70
Heizungsart
Fußbodenheizung, Zentralheizung
Details
Objektbeschreibung
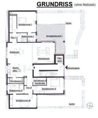
Diese moderne, barrierefreie Wohnung, die 2016 fertiggestellt wurde, erfüllt alle Erwartungen einer größeren Familie oder eines gehobenen individuellen Platzbedarfs. Mit ca. 184 Quadratmetern verteilt auf 4-5 Zimmer und einer hochwertigen Ausstattung befindet sich das Objekt im Wohnquartier Fleher Leben, das ebenfalls 2016...
Ausstattung
Die hochwertige Ausstattung der Wohnung begeistert die Bewohner. Innsbesondere die vom Eigentümer geplante Kücheninsel bildet einen ersten Kommunikations- und Empfangsort.
Der Küchenbereich öffnet sich dann zum klassichen Esszimmertisch und der Wohnlandschaft.
Hier wird noch kommuniziert und ein schönes Familienleben...
Weitere Informationen
Da die Wohnung aktuell gut und sicher vermietet ist, sind Besichtigungstermine nur nach vorheriger Absprache möglich. Um dies auf ein Minimum zu reduzieren bitten wir die Kaufinteressenten uns geeignete Finanzierungs- oder Eigenkapitalnachweise zur Verfügung zu stellen. Oder uns entsprechend zu kontaktieren. Gerne Herrn...
Dokumente
Anbieter der Immobilie
Waldrich Consulting
Alter Militärring 12, 50933 Köln

Online-ID: 2nnhr5n
Referenznummer: FleherLeben1A
Finde Angebote wie dieses
Hier geht es zu unserem Impressum, den Allgemeinen Geschäftsbedingungen, den Hinweisen zum Datenschutz und nutzungsbasierter Online-Werbung.