

Peter Dondorf Immobilien GmbH
Herr Peter Dondorf
024 ···
Nr. anzeigenPreise & Kosten
Provision für Käufer
provisionsfrei
Lage
Die Immobilie liegt im Stolberger Ortsteil Venwegen und verbindet ländliche Ruhe mit alltagstauglicher Infrastruktur. Das Umfeld ist geprägt von gewachsenen Wohnstrukturen und viel Grün, was den Standort besonders angenehm für ein familiengerechtes Wohnen macht.
Alltag und Versorgung
Für die täglichen Besorgungen...
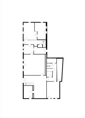
Das Haus
Kategorie
Einfamilienhaus
Energie & Heizung
Warum sehe ich diese Anzeige? – Du siehst diese Anzeige basierend auf Ihrer Navigation auf unserer Website und den Suchkriterien, die du verwendet hast.
Energieausweis: für diesen Gebäudetyp nicht notwendig
Details
Objektbeschreibung
Inmitten der begehrten, naturnahen Lage von Venwegen präsentiert sich dieses großzügige Landhaus als seltene Gelegenheit für Käufer mit Anspruch an Raum, Grundstück und Entwicklungspotenzial. Auf einem beeindruckenden Grundstück von ca. 1.308 m² bietet die Immobilie viel Platz für individuelle Wohnkonzepte - ideal für eine...
Ausstattung
- Wohnfläche ca. 487 m²
- Grundstück ca. 1.308 m²
- Landhausstil mit massiver Natursteinfassade
- Unterkellert
- Badezimmer mit Fliesenboden
- Bad mit gemauerter und gefliester Podest Badewanne
- Bad mit Doppelwaschbecken und wandmontierten Waschtischen
- Holzdecken mit sichtbaren Holzbalken in mehreren...
Preisinformation
10 Stellplätze
Weitere Informationen
Sonstiges
Kauf:
Weiter Informationen zum Objekt erfolgen nur nach schriftlicher Anfrage und allen damit verbundenen Kontaktangaben.
FERNABSATZGESETZ: Da wir gesetzlich verpflichtet sind, Sie bei telefonischen Anfragen oder Internetanfragen nach dem Fernabsatzgesetz zu informieren, ist die vollständige und...
Anbieter der Immobilie
Peter Dondorf Immobilien GmbH
Trierer Straße 734, 52078 Aachen

Online-ID: 2nnhq5x
Referenznummer: 1IVB4244
Finde Angebote wie dieses
Hier geht es zu unserem Impressum, den Allgemeinen Geschäftsbedingungen, den Hinweisen zum Datenschutz und nutzungsbasierter Online-Werbung.