
Immobilien Buchöster
Herr Christian Buchöster
+49 ···
Nr. anzeigenPreise & Kosten
Provision für Käufer
provisionsfrei
Lage
Die Wohnung liegt im Zentrum der beliebten und lebendigen Stadt Traunstein, die als attraktiver Wohnstandort im Chiemgau gilt. Die Kombination aus historischer Altstadt, vielfältigem Kultur- und Freizeitangebot sowie einer ausgezeichneten Infrastruktur macht Traunstein zu einem gefragten Lebensmittelpunkt. Der Stadtplatz mit...
Die Wohnung
Wohnungslage
Erdgeschoss
Derzeitige Nutzung
vermietet
Wohnanlage
Energie & Heizung
Warum sehe ich diese Anzeige? – Du siehst diese Anzeige basierend auf Ihrer Navigation auf unserer Website und den Suchkriterien, die du verwendet hast.
Energieausweistyp
Bedarfsausweis
Gebäudetyp
Wohngebäude
Baujahr laut Energieausweis
2023
Wesentliche Energieträger
BLOCK
Gültigkeit
bis 13.03.2034
Effizienzklasse
B
Endenergiebedarf
50,80 kWh/(m²·a)
Details
Objektbeschreibung
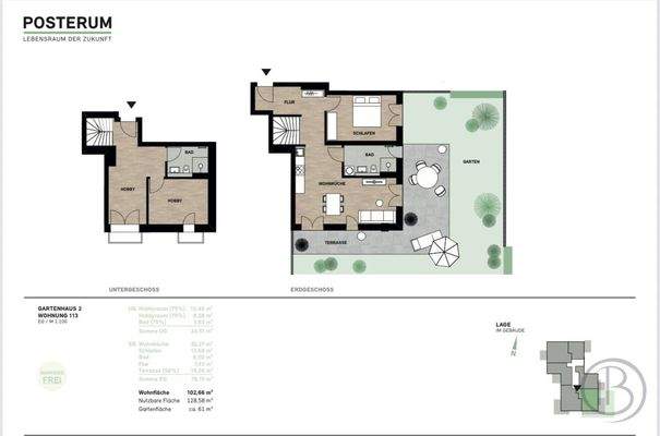
Wohnung Nr. 113
Die Wohnung ist derzeit vermietet zu einer Kaltmiete in Höhe von 1745,00 EUR und 257,00 EUR Nebenkosten.
Beim Eintreten in diese neuwertige Wohnung eröffnet sich ein repräsentativer, großzügiger Flur, der durch seine klare Architektur und hochwertige Anmutung unmittelbar ein Gefühl von Ruhe und...
Ausstattung
Merkmale:
-3,5-Zimmer
-Ca. 102,66 qm
-Tageslichtbad mit Dusche/WC
-Zweites Badezimmer im Untergeschoss mit Dusche/WC
-Große Südostterrasse mit Gartenbereich
-Zweiter Eingang im Untergeschoss
-Fußbodenheizung
-Handtuchtrockner
-Waschmaschinenanschluss
-Echtglas-Duschabtrennung
-Innenfarbe...
Weitere Informationen
Stichworte
Nutzfläche: 102,66 m², Anzahl der Schlafzimmer: 2, Anzahl der Badezimmer: 2, Anzahl Terrassen: 1
Anbieter der Immobilie
Immobilien Buchöster
Frühlingstr. 25a, 83278 Traunstein
Online-ID: 2nnhl5c
Referenznummer: IB-33
Finde Angebote wie dieses
Hier geht es zu unserem Impressum, den Allgemeinen Geschäftsbedingungen, den Hinweisen zum Datenschutz und nutzungsbasierter Online-Werbung.