Schmitz-Immobilien-Berlin

Herr Holger Schmitz

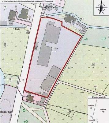
6.643 m² Gewerbegrundstück mit Baustoffmarkt in Grabow - Gewerbeobjekt mit Ausbau

€ 290.000
Kaufpreis
6 643 m²
Grundstücksfl. ca.

Der Anbieter dieses Objekts hat gegenüber der AVIV Germany GmbH als Betreiber dieses Online-Marktplatzes erklärt, nicht als Unternehmer im Sinne des § 1 KSchG zu handeln. Die im Verbraucherschutzrecht der Union verankerten Verbraucherrechte (insbesondere Informationspflichten und Rücktritts- bzw. Widerrufsrechte) finden auf den Vertrag zwischen dem Anbieter des Objekts und Ihnen (dem Interessenten) keine Anwendung.

Gewerblicher Anbieter

Der Anbieter dieses Objekts hat gegenüber der AVIV Germany GmbH als Betreiber dieses Online-Marktplatzes erklärt, als Unternehmer im Sinne des § 1 KSchG zu handeln.

AdresseStraße nicht freigegeben
19300 Grabow 
Auf Karte ansehen

Preise & Kosten

Kaufpreis € 290.000

Provision für Käufer

der Käufer allein bezahlt bei Kauf 7,14% inkl. 19% MwSt. Maklerprovision an das Maklerunternehmen

Lage

Das Objekt befindet sich in 19300 Grabow im südwestlichen Mecklenburg-Vorpommern. Die Stadt zeichnet sich durch eine verkehrsgünstige Lage zwischen den regionalen Zentren aus.

Die Kreisstadt Ludwigslust ist nur ca. 7 km entfernt, die Landeshauptstadt Schwerin erreicht man in rund 40 km. Die Metropolregion Hamburg liegt...

Mehr anzeigen

Das Grundstück

Kategorie

Gewerbe-Grundstück

  • voll erschlossen

Details

Objektbeschreibung

Dieses großzügige Gewerbegrundstück in 19300 Grabow bietet auf einer Gesamtfläche von ca. 6.643 m² eine vielseitig nutzbare Liegenschaft mit erheblichem Entwicklungspotenzial. Das Areal ist mit einem seit rund 25 Jahren bestehenden Baustoffmarkt bebaut, der aktuell geschlossen ist, jedoch mit seiner vorhandenen Infrastruktur...

Mehr anzeigen

Ausstattung

Die bauliche Substanz der Gebäude ist solide und zweckmäßig ausgeführt. Das Hauptgebäude verfügt über eine überdachte Laderampe, die eine witterungsunabhängige Warenanlieferung ermöglicht. Großzügige Hallenbereiche bieten variable Nutzungsmöglichkeiten für Verkauf, Ausstellung oder Lagerhaltung.

Im Inneren stehen...

Mehr anzeigen

Weitere Informationen

Sonstiges
Haben wir Ihr Interesse geweckt?
Gern stehen wir Ihnen für weitere Informationen, Unterlagen oder zur Vereinbarung eines Besichtigungstermins persönlich zur Verfügung.

Telefon: 030 / 34624037
E-Mail: info@schmitz-immobilien-berlin.de

Wir freuen uns auf Ihre Anfrage und beraten Sie individuell...

Mehr anzeigen

Anbieter der Immobilie

Partner

Schmitz-Immobilien-Berlin

im Durchschnitt  5,00  Sterne
(bei 1 Bewertungen)

Nisbléstr. 59, 13127 Berlin

Geschäftszeiten
user

Herr Holger Schmitz

Dein Ansprechpartner

Anbieter-Profil Anbieter-Impressum

Online-ID: 2nnhf5j

Referenznummer: SIB2932026

Finde Angebote wie dieses

imageimageimage

Hier geht es zu unserem Impressum, den Allgemeinen Geschäftsbedingungen, den Hinweisen zum Datenschutz und nutzungsbasierter Online-Werbung.