
Die Immonauten GmbH
Frau Maja Duscha
+49 ···
Nr. anzeigenPreise & Kosten
Provision für Käufer
Käuferprovision: 3,57% des Kaufpreises inkl. MwSt.
Lage
Die Immobilie befindet sich in der Weißenburgerstraße, im Herzen von Berlin-Spandau, einem der traditionsreichsten und zugleich immer attraktiver werdenden Stadtteile Berlins. Spandau zeichnet sich durch seine gute Mischung aus urbaner Infrastruktur und grünen, ruhigen Wohnlagen aus.
Die Lage der Immobilie bietet eine...
Die Wohnung
Wohnungslage
2. Geschoss
Bezug
sofort
Wohnanlage
Energie & Heizung
Warum sehe ich diese Anzeige? – Du siehst diese Anzeige basierend auf Ihrer Navigation auf unserer Website und den Suchkriterien, die du verwendet hast.
Energieausweistyp
Verbrauchsausweis
Gebäudetyp
Wohngebäude
Wesentliche Energieträger
Gas
Gültigkeit
15.02.2019 bis 15.02.2029
Effizienzklasse
C
Endenergieverbrauch
82,00 kWh/(m²·a)
Weitere Energiedaten
Energieträger
Gas
Heizungsart
Zentralheizung
Details
Objektbeschreibung
BEZUGSFREIE 2-ZIMMER-WOHNUNG
in SPANDAU/WILHELMSTADT
--------------------------------------------------
Diese charmante 2-Zimmer-Wohnung liegt im 2. Obergeschoss eines gepflegten Altbaus im Ortsteil Wilhelmstadt von Spandau.
Das Gebäude selbst wurde ca. 1904 erbaut und umfasst insgesamt vier Vollgeschosse...
Ausstattung
ÜBERBLICK
+ sofort bezugsfrei
+ ruhige Lage im 2. OG im Gartenhaus
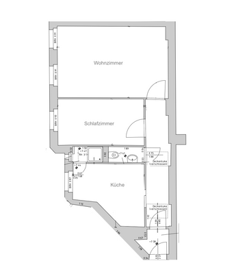
+ praktischer Grundriss mit guter Wohnaufteilung
+ Bodenbelag: abgeschliffene Dielen & Fliesen
+ Einbauküche ohne E-Geräte
+ Dusche/WC aus ca. 2000
+ Elektrik aus ca. Mitte/Ende 1990er Jahre
+ Zentrale Gasheizung wurde für das...
Weitere Informationen
Sonstiges
INTERESSIERT?
---------------------
Für Rückfragen oder Interesse an einem Besichtigungstermin freuen wir uns auf Ihre Kontaktaufnahme!
Maja Duscha | 0176-28138288 | m.duscha@die-immonauten.de
-------------------
Der Kaufpreis versteht sich zuzüglich einer Käuferprovision i.H.v. 3,57% inkl...
Anbieter der Immobilie

Die Immonauten GmbH
Sonntagstr.26, 10245 Berlin
Online-ID: 2nnge5m
Referenznummer: 11
Finde Angebote wie dieses
Hier geht es zu unserem Impressum, den Allgemeinen Geschäftsbedingungen, den Hinweisen zum Datenschutz und nutzungsbasierter Online-Werbung.