
ohne-makler.net - Immobilien selbst vermarkten
Privat von Müller
015 ···
Nr. anzeigenPreise & Kosten
Provision für Käufer
provisionsfrei
Lage
Einzigartige Lage im Herzen von Riede! Es ist ein Ort für die ganze Familie - ländlich und ruhig, aber trotzdem ist man schnell in der Stadt.
Diese Immobilie befindet sich in einer der besten Lagen des charmanten Ortes Riede, eingebettet in eine ruhige, familienfreundliche Nachbarschaft. Die Spielstraße endet in einer...
Das Haus
Kategorie
Einfamilienhaus
Baujahr
2015
Bezug
01.09.2026
Energie & Heizung
Warum sehe ich diese Anzeige? – Du siehst diese Anzeige basierend auf Ihrer Navigation auf unserer Website und den Suchkriterien, die du verwendet hast.
Energieausweistyp
Verbrauchsausweis
Gebäudetyp
Wohngebäude
Effizienzklasse
A+
Endenergieverbrauch
9,00 kWh/(m²·a)
Weitere Energiedaten
Energieträger
Erdwärme
Heizungsart
Fußbodenheizung
Details
Objektbeschreibung
Exklusive EH 40 Stadtvilla: 264 m² Massivbau & Zinsvorteil - Nur 10 Min. bis Bremen
Objekt & Lage: Zum Verkauf steht eine herrschaftliche Stadtvilla in solider Massivbauweise auf einem 1.040 m² großen, komplett abgeschlossenen Grundstück. Die Lage bietet die perfekte Balance zwischen urbaner Nähe und privatem...
Ausstattung
Terrasse, Garten, Vollbad, Duschbad, Einbauküche, Gäste-WC, Laminat, Fliesen
Bemerkungen:
A+ Stadtvilla, 40KfW Haus 264,29m² + Garage 54m², 10 min von HB
Familientraum - Großzügiges Wohnen im "Grünen Riede"
Auf 264 m² vereinen sich eine großzügige Raumgestaltung, hochwertige Materialien und eine Ausstattung...
Preisinformation
3 Stellplätze
1 Garagenstellplatz
Weitere Informationen
Sonstiges
Heizungsart: Fußbodenheizung
Energieträger: Erdwärme
Weitere Angaben
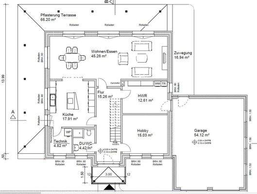
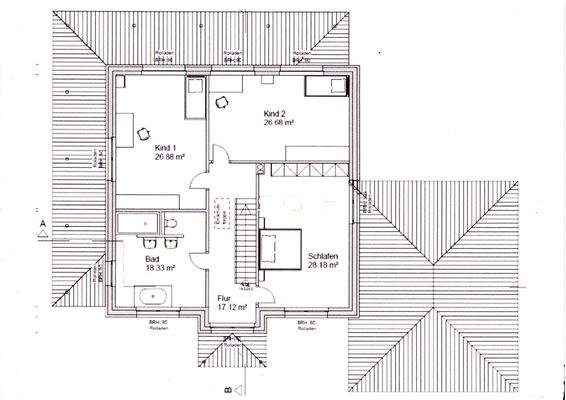
Wohnfläche: 264,29m² + Garage 54,12m²
Grundstückgröße: 1040m²
Objektzustand: neuwertig
Baujahr: 2015
Verfügbar ab: 01.09.2026
Energie
Energieausweis: Energieverbrauchsausweis
Energieverbrauch: 9,0...
Anbieter der Immobilie
ohne-makler.net - Immobilien selbst vermarkten
Humboldtstr. 25 A, 21509 Glinde
Online-ID: 2nnfx5m
Referenznummer: 394769
Finde Angebote wie dieses
Hier geht es zu unserem Impressum, den Allgemeinen Geschäftsbedingungen, den Hinweisen zum Datenschutz und nutzungsbasierter Online-Werbung.