
Vilsmeier Wohnbau GmbH
Herr Raphael Bast
Kontaktiere den Anbieter schriftlich, es ist keine Telefonnummer hinterlegt.
Preise & Kosten
Provision für Käufer
3,57 % inkl. MwSt.
Lage
Das Straubinger Stadtzentrum erreicht man innerhalb von 10 Fahrtminuten.
Eine Bushaltestelle befindet sich in unmittelbarer Nähe.
Das Haus
Kategorie
Reihenmittelhaus
Baujahr
1986
Bezug
frei
Energie & Heizung
Warum sehe ich diese Anzeige? – Du siehst diese Anzeige basierend auf Ihrer Navigation auf unserer Website und den Suchkriterien, die du verwendet hast.
Energieausweistyp
Verbrauchsausweis
Gebäudetyp
Wohngebäude
Wesentliche Energieträger
Gas
Gültigkeit
09.12.2025 bis 08.12.2035
Effizienzklasse
H
Endenergieverbrauch
257,00 kWh/(m²·a) - Warmwasser enthalten
Weitere Energiedaten
Haustyp
Massivhaus
Energieträger
Gas
Heizungsart
offener Kamin, Zentralheizung
Details
Objektbeschreibung
Das Reihenmittelhaus aus dem Jahr 1986 befindet sich in ruhiger Wohnlage im begehrten Straubinger Süden.
Die Immobilie wurde in massiver Bauweise auf einem ca. 160m² großem Grundstück erbaut und umfasst eine anrechenbare Wohnfläche von ca. 110m².
Vor dem Haus befindet sich ein kleiner Vorgarten sowie ein...
Ausstattung
- massive Ziegelbauweise (36,5cm)
- 2-fach verglaste Holzfenster
- Gaszentralheizung (Bj. 2001)
- Kachelofen
- Eichenparkettboden
- Fliesenboden
- Heizkörper
- Außenjalousien
- weiße Marmortreppe (Keller - Speicher)
Preisinformation
1 Garagenstellplatz
Weitere Informationen
Sonstiges
Das Haus wird mittels Gaszentralheizung (Bj. 2001) beheizt.
Zudem steht ein Kachelofen im Wohnbereich zur Verfügung.
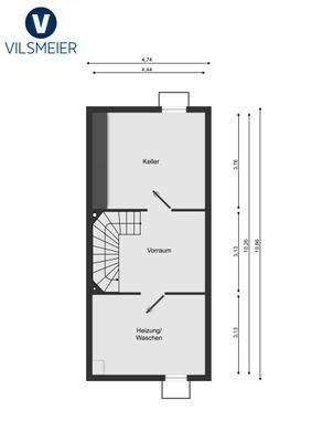
Bei den abgebildeten Grundrissen handelt es sich um Grundrisse eines Musterhauses.
Stichworte
Garage vorhanden, Anzahl der Schlafzimmer: 3, Anzahl der Badezimmer: 1, Anzahl...
Anbieter der Immobilie
Herr Raphael Bast
Dein Ansprechpartner
Kontaktiere den Anbieter schriftlich, es ist keine Telefonnummer hinterlegt.
Online-ID: 2nnfg58
Referenznummer: 159725413#kUDSR
Finde Angebote wie dieses
Hier geht es zu unserem Impressum, den Allgemeinen Geschäftsbedingungen, den Hinweisen zum Datenschutz und nutzungsbasierter Online-Werbung.