

ImmoTeam Jakob®
Herr Richard Jakob
+49 ···
Nr. anzeigenPreise & Kosten
Provision für Käufer
3,57 % inkl. Weitere Informationen siehe Provisionshinweis.
Lage
Das Einfamilienhaus befindet sich in familienfreundlicher Wohnlage von Mackenbach in einer ruhigen Seitenstraße. Mackenbach ist eine Ortsgemeinde im Landkreis Kaiserslautern in Rheinland-Pfalz, welche der Verbandsgemeinde Weilerbach angehört.
Familien profitieren von der Nähe zu Kindergarten und Grundschule, welche...
Das Haus
Kategorie
Mehrfamilienhaus
Baujahr
1962
Bezug
nach Vereinbarung
Derzeitige Nutzung
vermietet
Energie & Heizung
Warum sehe ich diese Anzeige? – Du siehst diese Anzeige basierend auf Ihrer Navigation auf unserer Website und den Suchkriterien, die du verwendet hast.
Energieausweistyp
Bedarfsausweis
Gebäudetyp
Wohngebäude
Baujahr laut Energieausweis
1962
Wesentliche Energieträger
Gas, Holz
Gültigkeit
25.02.2026 bis 24.02.2036
Endenergiebedarf
367,00 kWh/(m²·a)
Weitere Energiedaten
Energieträger
Gas, Holz
Heizungsart
Etagenheizung, offener Kamin
Details
Objektbeschreibung
Dieses freistehende Zweifamilienhaus wurde in Massivbauweise ca. im Jahr 1962 auf einem 498 m² großen Grundstück in einer ruhigen, familienfreundlichen Wohngegend von Mackenbach erbaut und ca. 1972 durch einen Anbau erweitert.
Die Wohnfläche von rund 175 m² verteilt sich über 2 Etagen. Es befindet sich jeweils eine...
Ausstattung
Aufteilung:
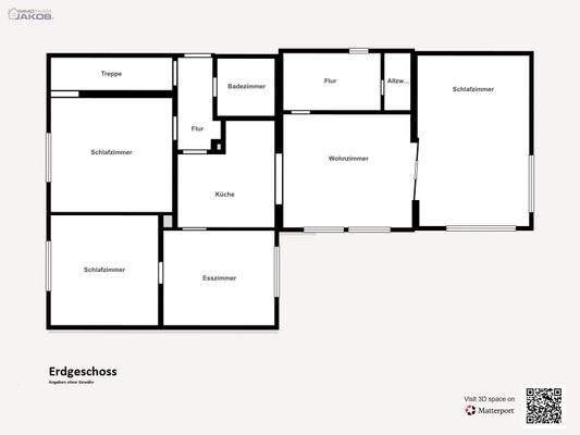
Wohnung Erdgeschoss, ca. 114 m² :
- Überdachter Eingangsbereich
- 1 Flur
- 1 Badezimmer mit Fenster, Waschbecken, WC und barrierefreie Dusche
- 1 Küche mit Küchenzeile
- 1 Esszimmer mit Kaminofen
- 1 Wohnzimmer
- 3 Schlafzimmer
- 1 Flurbereich mit Anschlüssen für Waschmaschine &...
Preisinformation
2 Stellplätze
2 Garagenstellplätze
Weitere Informationen
Provisionshinweis
3,57 % inkl. 19 % der gesetzlichen Mehrwertsteuer
Bei Abschluss eines Kaufvertrages wird eine Vermittlungs-/ Nachweisprovision in Höhe von 3,57 % inklusive 19 % Mehrwertsteuer auf den Kaufpreis vom Käufer fällig.
Der Immobilienmakler hat einen provisionspflichtigen Maklervertrag mit dem Verkäufer in...
Dokumente
Anbieter der Immobilie
ImmoTeam Jakob®
Hauptstr. 11, 67685 Weilerbach

Online-ID: 2nnf35p
Referenznummer: 29012026763
Finde Angebote wie dieses
Hier geht es zu unserem Impressum, den Allgemeinen Geschäftsbedingungen, den Hinweisen zum Datenschutz und nutzungsbasierter Online-Werbung.