

MAKRO IMMOBILIEN Pinneberg, Inh. Sven P. Stein
Frau Denise T. Sezer
004 ···
Nr. anzeigenPreise & Kosten
Provision für Käufer
3,9 % v. Kaufpreis inkl. MwSt.
Lage
Obwohl nur wenige Kilometer von Hamburg entfernt, ist Pinneberg eine Stadt mit eigenem Charme und hohem Wohn- und Freizeitwert.
Die Kreisstadt Pinneberg mit rund 43.000 Einwohnern liegt in der Metropolregion Hamburg, ca. 18 km von der Hamburger Innenstadt entfernt und umfasst die Ortsteile Zentrum, Quellental, Thesdorf...
Die Wohnung
Wohnungslage
Erdgeschoss
Bezug
Vereinbarung
Wohnanlage
Energie & Heizung
Warum sehe ich diese Anzeige? – Du siehst diese Anzeige basierend auf Ihrer Navigation auf unserer Website und den Suchkriterien, die du verwendet hast.
Energieausweistyp
Verbrauchsausweis
Gebäudetyp
Wohngebäude
Baujahr laut Energieausweis
1970
Wesentliche Energieträger
ERDGAS_LEICHT
Gültigkeit
bis 28.08.2028
Effizienzklasse
D
Endenergieverbrauch
128,00 kWh/(m²·a)
Weitere Energiedaten
Energieträger
Fernwärme, Gas
Details
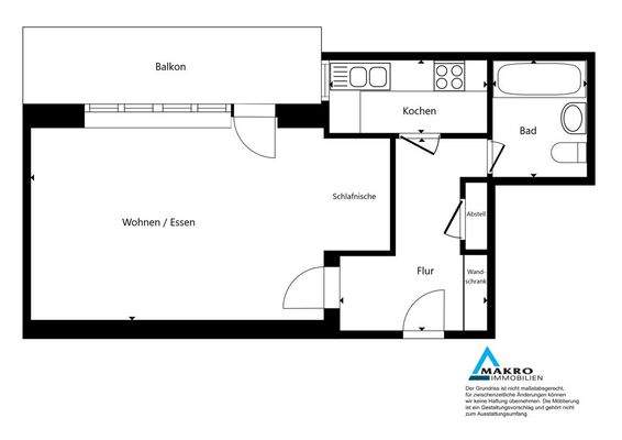
Objektbeschreibung
Optimale Starter-Wohnung für neue Kapitalanleger!
Die angebotene 1-Zimmer-Balkonwohnung befindet sich in einem gepflegten Mehrfamilienhaus, nur wenige Schritte vom Pinneberger Zentrum entfernt. Einkaufsmöglichkeiten, Restaurants, Freizeitangebote sowie der Bahnhof mit Anbindung an Regional- und S-Bahn sind bequem...
Ausstattung
- Balkon in Westausrichtung
- Wohnzimmer mit Schlafnische
- separate Küche mit Einbauschränken
- Bad mit Badewanne
- Abstellraum
- Einbauschrank im Flur
- Kellerraum
- Wasch- und Trockenraum
- Spielplatz vor der Anlage
-...
Weitere Informationen
Sonstiges
https://my.matterport.com/show/?m=iHNyEajMAjq
IMMOBILIEN-BEWERTUNG - https://bit.ly/42PioR7
HOMEPAGE - https://bit.ly/42MSu0t
Videoporträt - https://bit.ly/42NRjxG
Stichworte
West-Nord-West-Balkon/Terrasse, vermietbare Fläche: 42,17 m², Grundstücksfläche: 3.959,00 m², Anzahl der...
Anbieter der Immobilie
MAKRO IMMOBILIEN Pinneberg, Inh. Sven P. Stein
Damm 6, 25421 Pinneberg

Online-ID: 2nnes5c
Referenznummer: 205-8524
Finde Angebote wie dieses
Hier geht es zu unserem Impressum, den Allgemeinen Geschäftsbedingungen, den Hinweisen zum Datenschutz und nutzungsbasierter Online-Werbung.