
selbst vermarkten
Stefanie Laabs
Kontaktiere den Anbieter schriftlich, es ist keine Telefonnummer hinterlegt.
Preise & Kosten
Provision für Käufer
Bitte beachte, das Angebot kann bei Vertragsabschluss die Zahlung einer Provision beinhalten. Weitere Informationen erhältst Du vom Anbieter.
Lage
Die Potsdamer Straße 104 liegt im begehrten Stadtteil Bornim, im nördlichen Teil von Potsdam - einer Gegend, die für ihre ruhige Wohnqualität, gewachsenen Strukturen und zugleich hervorragende Anbindung bekannt ist.
Eingebettet zwischen Bornstedt, dem Volkspark Potsdam und den Parkanlagen von Sanssouci, bietet die Lage...
Das Haus
Baujahr
1890
Bezug
Sofort
Energie & Heizung
Warum sehe ich diese Anzeige? – Du siehst diese Anzeige basierend auf Ihrer Navigation auf unserer Website und den Suchkriterien, die du verwendet hast.
Weitere Energiedaten
Heizungsart
Zentralheizung
Details
Objektbeschreibung
Dieses wunderschöne Zweifamilienhaus mit Remise vereint klassische Architektur mit moderner Technik - ein Zuhause, das Wertigkeit, Komfort und Nachhaltigkeit auf höchstem Niveau bietet.
Mit viel Liebe wurde das charmante Mehrfamilienhaus mit zwei Wohneinheiten komplett von Fachhandwerkern kernsaniert und präsentiert...
Ausstattung
+ kernsaniertes Zweifamilienhaus
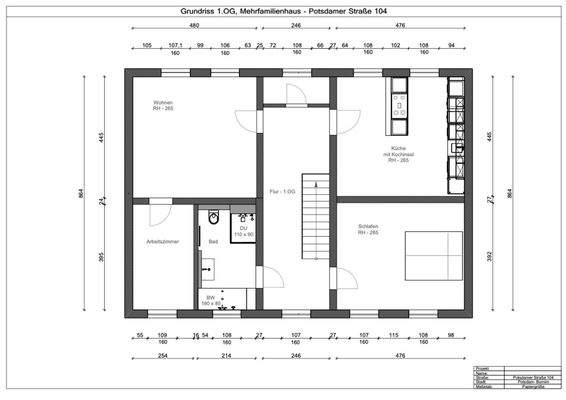
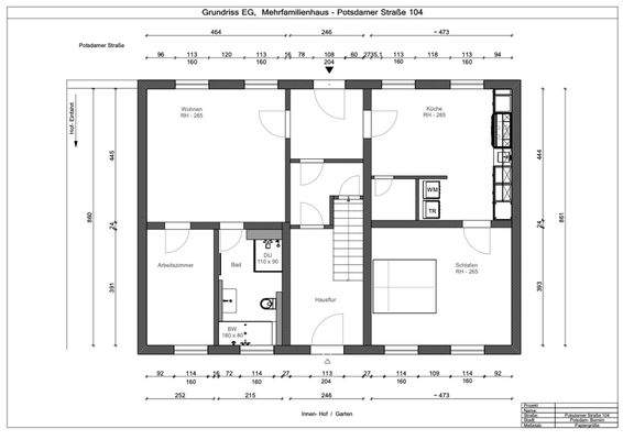
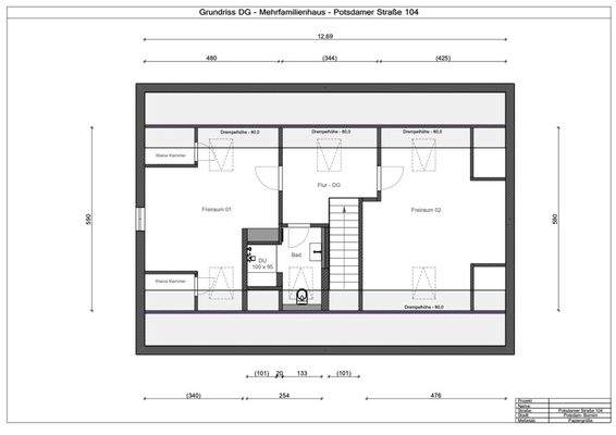
+ zwei Wohneinheiten, separat begehbar: EG ca. 83 m² + 1.OG und DG ca. 170 m²
+ ca.40 m² Keller, Zugang über beide Wohneinheiten
+ neue Heizung-, Sanitär- und Elektro-Installationen im kompletten Haus
+ neues Dach
+ neue Heizung mit Wärmepumpe vom Markenhersteller Buderus
+...
Preisinformation
4 Garagenstellplätze
Weitere Informationen
Stichworte
Garage vorhanden, Nutzfläche: 250,00 m², Anzahl der Badezimmer: 3, 3 Etagen
Anbieter der Immobilie
selbst vermarkten
Gundermannstr. 80, 80935 München
Stefanie Laabs
Dein Ansprechpartner
Kontaktiere den Anbieter schriftlich, es ist keine Telefonnummer hinterlegt.
Online-ID: 2nncs5d
Referenznummer: _Lp3t_Mh
Finde Angebote wie dieses
Hier geht es zu unserem Impressum, den Allgemeinen Geschäftsbedingungen, den Hinweisen zum Datenschutz und nutzungsbasierter Online-Werbung.