

DAHLER Potsdam | Berlin-Wannsee | Kleinmachnow
Herr Kevin Manhardt
033 ···
Nr. anzeigenPreise & Kosten
Provision für Käufer
3.57% inkl. 19 % MwSt. bezogen auf den beurkundeten Kaufpreis
Lage
Ihre neue Wohnung liegt inmitten der Nördlichen Innenstadt von Potsdam und befindet sich in einer ruhigen Seitenstraße in direkter Nähe zum barocken Stadtkern.
In nur 5 Fußminuten von der Wohnung ist der Park "Neuer Garten" zu erreichen, der den "Heiliger See" in einer wunderschönen Art und Weise einrahmt. Zahlreiche...
Die Wohnung
Wohnungslage
2. Geschoss
Wohnanlage
Energie & Heizung
Warum sehe ich diese Anzeige? – Du siehst diese Anzeige basierend auf Ihrer Navigation auf unserer Website und den Suchkriterien, die du verwendet hast.
Energieausweistyp
Verbrauchsausweis
Gebäudetyp
Wohngebäude
Baujahr laut Energieausweis
1905
Wesentliche Energieträger
FERN
Gültigkeit
bis 29.02.2028
Effizienzklasse
C
Endenergieverbrauch
90,00 kWh/(m²·a)
Weitere Energiedaten
Energieträger
Fernwärme
Details
Objektbeschreibung
Die hier angebotene Wohnung befindet sich in der qualitätsvollen WITAM-Wohnanlage, errichtet zwischen 1904 und 1906 nach Entwürfen der Architekten A. Krause, Ludwig Otte, Edmund Rohde und Friedrich Rohde. Die repräsentativen Mietshäuser mit ihren begrünten Ehrenhöfen schließen städtebaulich die Verbindung von der Berliner...
Ausstattung
. Denkmalgeschützte Wohnanlage von 1904-1906 in repräsentativer Architektur
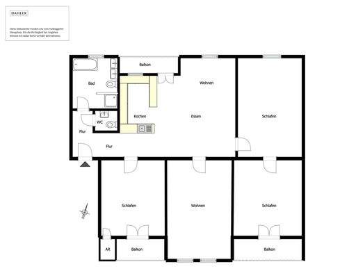
. Ruhige Altbauetage im 2. Obergeschoss mit ca. 142 m² Wohnfläche
. Fünf klar proportionierte Zimmer mit vielseitigen Nutzungsmöglichkeiten
. Drei Balkone, davon zwei sonnenverwöhnt nach Süden mit Blick in den grünen Ehrenhof
. Offene...
Weitere Informationen
Sonstiges
Ihre Werte sind bei uns in besten Händen
DAHLER ist auf die Vermittlung hochwertiger Wohnimmobilien in bevorzugten Lagen spezialisiert. Seit über 30 Jahren wird unser Unternehmen von Kirsten und Björn Dahler geführt und setzt mit Innovationskraft und Servicequalität Maßstäbe in der Branche. Unsere mehr als...
Anbieter der Immobilie

Online-ID: 2nn865y
Referenznummer: D-POT7976-3-LIV
Finde Angebote wie dieses
Hier geht es zu unserem Impressum, den Allgemeinen Geschäftsbedingungen, den Hinweisen zum Datenschutz und nutzungsbasierter Online-Werbung.