Faberhaus GmbH

Herr Andreas Faber

WE 3 - Moderne 3-Zimmer Wohnung, Wohnen im Herzen von Bitburg

€ 419.850
Kaufpreis
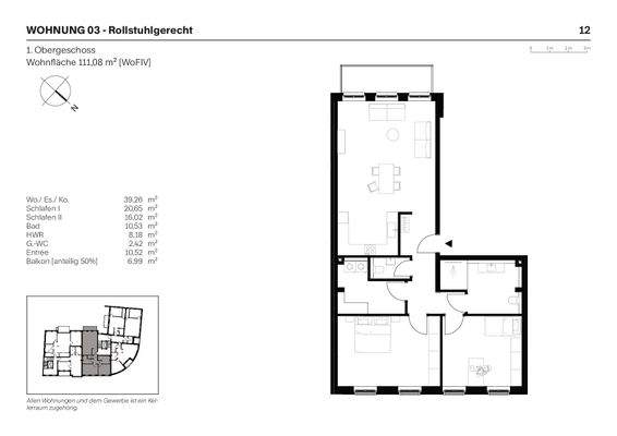
111,08 m²
Wohnfläche ca.
3
Zimmer

Der Anbieter dieses Objekts hat gegenüber der AVIV Germany GmbH als Betreiber dieses Online-Marktplatzes erklärt, nicht als Unternehmer im Sinne des § 1 KSchG zu handeln. Die im Verbraucherschutzrecht der Union verankerten Verbraucherrechte (insbesondere Informationspflichten und Rücktritts- bzw. Widerrufsrechte) finden auf den Vertrag zwischen dem Anbieter des Objekts und Ihnen (dem Interessenten) keine Anwendung.

Provisionsfrei
Gewerblicher Anbieter

Der Anbieter dieses Objekts hat gegenüber der AVIV Germany GmbH als Betreiber dieses Online-Marktplatzes erklärt, als Unternehmer im Sinne des § 1 KSchG zu handeln.

AdresseKarenweg 18
54634 Bitburg 
Auf Karte ansehen

Preise & Kosten

Kaufpreis € 419.850

Provision für Käufer

provisionsfrei

Lage

Die Wohnung

Wohnungslage

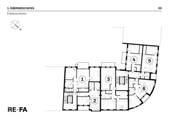
2. Geschoss

  • Bad mit Dusche, Gäste-WC
  • Balkon
  • offene Küche
  • rollstuhlgerecht
  • Böden: Fliesenboden, Parkett
  • Fenster: Kunststofffenster

Wohnanlage

  • Baujahr: 2026
  • Personenaufzug
  • Stellplätze: Carport, Außen-Stellplatz

Energie & Heizung

A+
A
B
C
D
E
F
G
H
0 25 50 75 100 125 150 175 200 225 250 +

Energieausweistyp

Bedarfsausweis

Gebäudetyp

Wohngebäude

Baujahr laut Energieausweis

2024

Gültigkeit

16.10.2023 bis 14.03.2034

Effizienzklasse

A+

Endenergiebedarf

10,20 kWh/(m²·a)

Weitere Energiedaten

Energieträger

Elektro

Haustyp

KfW 40

Heizungsart

Fußbodenheizung, Luft-/Wasser-Wärmepumpe

Details

Objektbeschreibung

Diese attraktive 3-Zimmer-Wohnung im 1. Obergeschoss überzeugt durch ihre zentrale Lage in Bitburg sowie eine durchdachte Raumaufteilung auf ca. 111 m² Wohnfläche. Einkaufsmöglichkeiten, Restaurants und alle Dinge des täglichen Bedarfs sind bequem fußläufig erreichbar.

Der helle und großzügige Wohn- und Essbereich mit...

Mehr anzeigen

Weitere Informationen

Sonstiges
Info: Anzahl Etagen: 5

Anbieter der Immobilie

Partner

Faberhaus GmbH

im Durchschnitt  2,80  Sterne
(bei 1 Bewertungen)

Sauerstaden 40, 54669 Bollendorf

user

Herr Andreas Faber

Dein Ansprechpartner

Anbieter-Website Anbieter-Impressum

Online-ID: 2nn7l5y

Finde Angebote wie dieses

imageimageimage

Hier geht es zu unserem Impressum, den Allgemeinen Geschäftsbedingungen, den Hinweisen zum Datenschutz und nutzungsbasierter Online-Werbung.