
ohne-makler.net - Immobilien selbst vermarkten
Privat von Julia Zelik
Kontaktiere den Anbieter schriftlich, es ist keine Telefonnummer hinterlegt.
Preise & Kosten
Provision für Käufer
provisionsfrei
Lage
Das Haus befindet sich in einer ruhigen Tempo-30-Wohnstraße mit überwiegend Anwohnerverkehr in Bielefeld-Sennestadt. Eine entspannte, familienfreundliche Umgebung mit gewachsener Nachbarschaft.
Schulen, Kindergärten, Einkaufsmöglichkeiten und Ärzte sind gut erreichbar. Gleichzeitig genießen Sie die Nähe zur Natur mit viel...
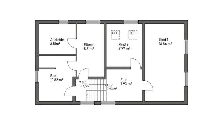
Das Haus
Kategorie
Einfamilienhaus
Baujahr
1933
Bezug
sofort
Derzeitige Nutzung
vermietet
Energie & Heizung
Warum sehe ich diese Anzeige? – Du siehst diese Anzeige basierend auf Ihrer Navigation auf unserer Website und den Suchkriterien, die du verwendet hast.
Energieausweistyp
Verbrauchsausweis
Gebäudetyp
Wohngebäude
Effizienzklasse
B
Endenergieverbrauch
69,00 kWh/(m²·a)
Weitere Energiedaten
Energieträger
Gas
Heizungsart
Fußbodenheizung
Details
Objektbeschreibung
Es gibt Häuser - und es gibt Orte, an denen man wirklich zuhause ist.
Dieses freistehende Einfamilienhaus wurde 2017 vollständig kernsaniert - technisch, energetisch und gestalterisch. Dabei wurde das Gebäude praktisch von Grund auf erneuert: Haustechnik, Leitungen, Dämmung, Fenster und Ausstattung entsprechen dem...
Ausstattung
Terrasse, Garten, Keller, Vollbad, Duschbad, Einbauküche, Gäste-WC, Laminat, Fliesen
Bemerkungen:
Ausstattung (Auszug)
* Kernsanierung 2017
* 711 m² Grundstück mit Garten
* Große, lichtdurchflutete Glasdach-Terrasse
* Energieeffizienzklasse B
* Fußbodenheizung in allen Wohnbereichen
*...
Preisinformation
1 Carportplatz
2 Stellplätze
Weitere Informationen
Sonstiges
Heizungsart: Fußbodenheizung
Energieträger: Gas
Privatverkauf - provisionsfrei.
Da wir das Haus privat verkaufen, bitten wir bei der Kontaktaufnahme um eine kurze Vorstellung (Name, Haushaltsgröße und Kaufmotivation). Wir beantworten ausschließlich Anfragen mit vollständigen Angaben.
Frei ab...
Anbieter der Immobilie
ohne-makler.net - Immobilien selbst vermarkten
Humboldtstr. 25 A, 21509 Glinde
Privat von Julia Zelik
Dein Ansprechpartner
Kontaktiere den Anbieter schriftlich, es ist keine Telefonnummer hinterlegt.
Online-ID: 2nn7a5s
Referenznummer: 434376
Finde Angebote wie dieses
Hier geht es zu unserem Impressum, den Allgemeinen Geschäftsbedingungen, den Hinweisen zum Datenschutz und nutzungsbasierter Online-Werbung.