
HausHirsch GmbH
Herr Edgar Witt
+49 ···
Nr. anzeigenPreise & Kosten
Provision für Käufer
5.95%
5,95%
Lage
Lagebeschreibung:
Die Anlage befindet sich in Buxtehude, in einer ruhigen und gut angebundenen Umgebung.
Die nächste Haltestelle des öffentlichen Nahverkehrs ist nur wenige Gehminuten entfernt. Auch die Autobahnauffahrt ist schnell erreichbar, was eine gute Anbindung an die umliegenden Städte gewährleistet.
Das Renditeobjekt
Kategorie
Produktionshalle
Baujahr
2024
Details
Objektbeschreibung
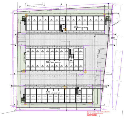
Die moderne Selfstorage Anlage befindet sich in einer erstklassigen Lage und bietet insgesamt 120 Garagen und Lagerboxen. Der Betrieb der Anlage läuft bereits seit 2024 und erfreut sich großer Beliebtheit. Die verkürzte Abschreibungsdauer beträgt 20 Jahre, was einer jährlichen Abschreibung von 5% auf den Gebäudeteil...
Ausstattung
Durch die hochwertige Ausstattung und die optimalen Lagermöglichkeiten wird dieses Investment zu einer lohnenswerten Option für Kapitalanleger.
Die Phase der Erstvermietung begann im April 2024 und wird erfolgreich im Rahmen einer durchdachten Vermarktungsstrategie umgesetzt. Bei Vollvermietung (Vermietungsstand 100%)...
Weitere Informationen
Stichworte
Bundesland: Niedersachsen
Anbieter der Immobilie
Online-ID: 2nn4y5z
Referenznummer: HA2532915
Finde Angebote wie dieses
Hier geht es zu unserem Impressum, den Allgemeinen Geschäftsbedingungen, den Hinweisen zum Datenschutz und nutzungsbasierter Online-Werbung.