

H&H FinanzMakler GmbH
Frau Conny Kaspar
036 ···
Nr. anzeigenPreise & Kosten
Provision für Käufer
Die Käufercourtage beträgt 3,57 % inkl. MwSt. auf den vereinbarten Kaufpreis. Grunderwerbsteuer, Notar- und Gerichtskosten trägt der Käufer.
Lage
Waltershausen ist eine gewachsene Kleinstadt im Landkreis Gotha und liegt landschaftlich attraktiv am Übergang vom Thüringer Becken zum Thüringer Wald.
Die Stadt vereint eine gut ausgebaute Infrastruktur mit der unmittelbaren Nähe zu Natur- und Erholungsgebieten und gilt als familienfreundlicher Wohnstandort mit kurzen...
Das Haus
Kategorie
Einfamilienhaus
Bezug
sofort
Energie & Heizung
Warum sehe ich diese Anzeige? – Du siehst diese Anzeige basierend auf Ihrer Navigation auf unserer Website und den Suchkriterien, die du verwendet hast.
Weitere Energiedaten
Energieträger
Gas
Heizungsart
Zentralheizung
Details
Objektbeschreibung
Dieses charmante Einfamilienhaus bietet vielseitige Nutzungsmöglichkeiten und richtet sich insbesondere an Käufer, die ihre eigenen Wohnideen und Vorstellungen verwirklichen möchten. Das Objekt befindet sich in einem sanierungsbedürftigen Zustand und eröffnet dadurch ein hohes Maß an individueller Gestaltungsfreiheit...
Ausstattung
Im Zuge eine Neuplanung ist vorgesehen, das Obergeschoss als zentralen Wohnbereich zu gestalten: Hier entsteht ein großzügiges Wohnzimmer mit Kamin als Herzstück des Hauses, das künftig ein behagliches und kommunikatives Zentrum für das Familienleben bildet. Ergänzend ist ein Balkon im Obergeschoss geplant, der den Wohnraum...
Preisinformation
2 Stellplätze
1 Garagenstellplatz
Weitere Informationen
Stichworte
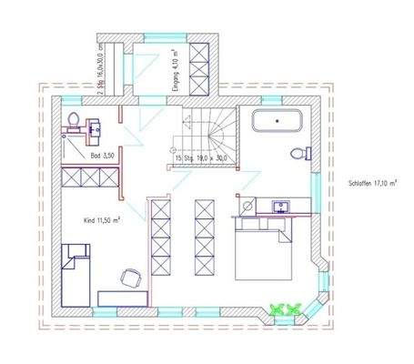
Anzahl der Schlafzimmer: 2,5, Anzahl der Badezimmer: 1, 2 Etagen
Anbieter der Immobilie

Online-ID: 2nn3q5b
Referenznummer: CK-523-HH
Finde Angebote wie dieses
Hier geht es zu unserem Impressum, den Allgemeinen Geschäftsbedingungen, den Hinweisen zum Datenschutz und nutzungsbasierter Online-Werbung.