
Hauck immoblien
Herr Luca Sciarrotta
017 ···
Nr. anzeigenPreise & Kosten
Provision für Käufer
2,98 inkl. MwSt.
Lage
Flörsbachtal Die Gemeinde Flörsbachtal befindet sich im Südosten des Main-Kinzig-Kreises und umfasst vier Orte, Lohrhaupten, Kempfenbrunn, Flörsbach und Mosborn. Flörsbachtal liegt mitten im Spessart in dem die Bundesstraße 276 verläuft. In südlicher Richtung gelangt man nach Lohr am Main und in nördlicher Richtung über...
Das Haus
Kategorie
Einfamilienhaus
Baujahr
1928
Energie & Heizung
Warum sehe ich diese Anzeige? – Du siehst diese Anzeige basierend auf Ihrer Navigation auf unserer Website und den Suchkriterien, die du verwendet hast.
Weitere Energiedaten
Energieträger
Öl
Heizungsart
Zentralheizung
Details
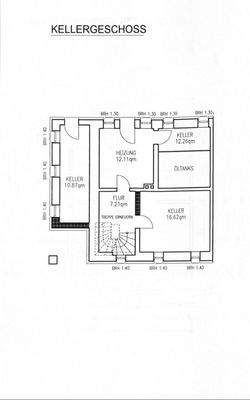
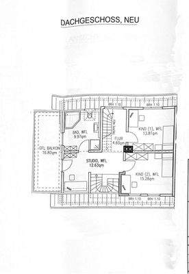
Objektbeschreibung
Das Dach dieses Einfamilienhauses lässt erahnen, wieviel Kraft, Zeit und Geld in die komplette Sanierung investiert wurde. Lediglich die Außenfassade benötigt noch ein wenig Aufmerksamkeit. Es wäre falsch, sich hiervon abschrecken zu lassen, da die Immobilie in allen anderen Bereichen komplett saniert wurde.
Das Haus...
Ausstattung
Das Haus verfügt über folgende Ausstattung:
-dreifach verglaste, abschließbare Fenster mit Fliegengitter
-elektrische Rollläden
-Klingel mit Kamera
-großer Balkon (17qm)
-beheizte Sitzfläche in der Dusche
-zwei Stellplätze im Carport
-Stellplatz direkt vor dem Haus
Preisinformation
2 Carportplätze
1 Stellplatz
Weitere Informationen
Sonstiges
Bitte haben Sie Verständnis dafür, dass wir nur Anfragen mit kompletter Privatanschrift, Telefon- oder Handynummer und email-Adresse beantworten. Besichtigungen sind nur über unser Büro zu vereinbaren.
Angebot ist freibleibend, Zwischenverkauf vorbehalten. Wir weisen auf unsere Allgemeinen Geschäftsbedingungen...
Anbieter der Immobilie
Hauck immoblien
Bergstraße 24, 63599 Biebergemünd-Rossbach
Online-ID: 2nn355m
Referenznummer: Kempf_29_09_26
Finde Angebote wie dieses
Hier geht es zu unserem Impressum, den Allgemeinen Geschäftsbedingungen, den Hinweisen zum Datenschutz und nutzungsbasierter Online-Werbung.