
PORATH Immobilien
Wolfram Porath
+49 ···
Nr. anzeigenPreise & Kosten
Provision für Mieter
Bitte beachte, das Angebot kann bei Vertragsabschluss die Zahlung einer Provision beinhalten. Weitere Informationen erhältst Du vom Anbieter.
Warum sehe ich diese Anzeige? – Du siehst diese Anzeige basierend auf Ihrer Navigation auf unserer Website und den Suchkriterien, die du verwendet hast.
Lage
Das Objekt befindet sich in Reutershagen. Es ist mit dem Individual- und dem öffentlichen Nahverkehr gut zu erreichen.
Büro-/Praxisfläche
Kategorie
Bürofläche
Baujahr
1960
Derzeitige Nutzung
frei
Energie & Heizung
Warum sehe ich diese Anzeige? – Du siehst diese Anzeige basierend auf Ihrer Navigation auf unserer Website und den Suchkriterien, die du verwendet hast.
Wärme
Strom
Energieausweistyp
Bedarfsausweis
Gebäudetyp
Nicht-Wohngebäude
Baujahr laut Energieausweis
1997
Wesentliche Energieträger
Gas
Gültigkeit
06.05.2019 bis 05.05.2029
Endenergiebedarf (Wärme)
296,70 kWh/(m²·a)
Endenergiebedarf (Strom)
18,20 kWh/(m²·a)
Weitere Energiedaten
Energieträger
Gas
Details
Objektbeschreibung
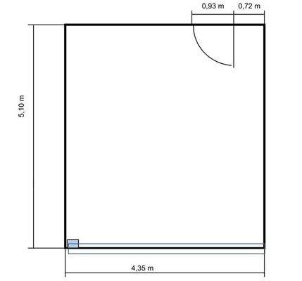
Bei diesem Objekt handelt es sich um ein 1 - Zimmer - Büro im 1. OG eines Geschäftshauses. Der Boden ist mit Teppich ausgelegt. Eine Teeküche und Sanitärbereiche sind zur Mitbenutzung vorhanden.
Weitere Informationen
Sonstiges
Haftungsausschluss
Alle Angaben haben wir vom Auftraggeber erhalten. Für deren Richtigkeit und Vollständigkeit können wir keine Gewähr übernehmen. Eine/n Zwischenvermietung/-verkauf behält sich der Auftraggeber ausdrücklich vor.
Anbieter der Immobilie
PORATH Immobilien
Wilhelm - Külz - Platz 2, 18055 Rostock
Online-ID: 2nmym5b
Referenznummer: 2601003 R05 (1/741)
Finde Angebote wie dieses
Hier geht es zu unserem Impressum, den Allgemeinen Geschäftsbedingungen, den Hinweisen zum Datenschutz und nutzungsbasierter Online-Werbung.