

EDE INVEST GmbH & Co. KG
Herr Michael Keil
+49 ···
Nr. anzeigenPreise & Kosten
Provision für Käufer
Bitte beachte, das Angebot kann bei Vertragsabschluss die Zahlung einer Provision beinhalten. Weitere Informationen erhältst Du vom Anbieter.
Lage
Lagebeschreibung der Immobilie - Zwischen Kolbermoor und Bad Aibling
Die Immobilie befindet sich in einer strategisch günstigen Lage im Landkreis Rosenheim, zwischen Kolbermoor und Bad Aibling. Diese Region ist geprägt von einer vorteilhaften Mischung aus städtischem Komfort und naturnaher Umgebung. Die Nähe zu den...
Das Haus
Kategorie
Mehrfamilienhaus
Baujahr
2026
Bezug
Nach Fertigstellung
Energie & Heizung
Warum sehe ich diese Anzeige? – Du siehst diese Anzeige basierend auf Ihrer Navigation auf unserer Website und den Suchkriterien, die du verwendet hast.
Energieausweis: für diesen Gebäudetyp nicht notwendig
Details
Objektbeschreibung
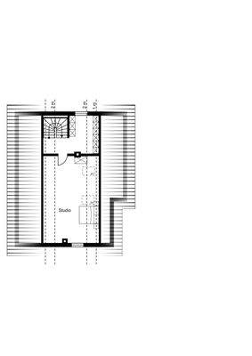
### Flexibles Wohnkonzept im Landkreis Rosenheim
In Rosenheim (Kreis) präsentiert sich dieses Anwesen als attraktives Wohnobjekt, das sowohl als Ein- als auch Zweifamilienhaus genutzt werden kann. Auf einer großzügigen Wohnfläche von etwa 233 m² verteilen sich insgesamt 8 Zimmer, die für vielfältige...
Ausstattung
Kostenübersicht Bauvorhaben
Planung und Genehmigung: 5.000 €
Fundament: 15.000 €
Anbau Technik: 15.000 €
Tragwerk, Statik, Zwischenböden: 15.000 €
Dach (Hauptgebäude): 42.000 €
Dach (Nebengebäude): 7.500 €
Heizung und Sanitär: 70.000 €
Elektroinstallation: 30.000...
Weitere Informationen
Sonstiges
Alle in diesem Exposé verwendeten Angaben beruhen auf Informationen von Dritten (z.B. Eigentümer, Hausverwaltung, etc.) und daher freibleibend und ohne jegliche Gewähr. Zahlenangaben sind immer als ca-Angaben zu verstehen. Irrtum, Änderungen, Zwischenverkauf oder Zwischenvermietung bleiben vorbehalten. Die...
Anbieter der Immobilie
EDE INVEST GmbH & Co. KG
Bavariaring 18, 80336 München

Online-ID: 2nmyh5u
Referenznummer: 6255_1
Finde Angebote wie dieses
Hier geht es zu unserem Impressum, den Allgemeinen Geschäftsbedingungen, den Hinweisen zum Datenschutz und nutzungsbasierter Online-Werbung.