
Immobilienberatung Behrendt
Herr Tobias Behrendt
004 ···
Nr. anzeigenPreise & Kosten
Provision für Käufer
Bitte beachte, das Angebot kann bei Vertragsabschluss die Zahlung einer Provision beinhalten. Weitere Informationen erhältst Du vom Anbieter.
Lage
Das angebotene Grundstück liegt in einer sehr begehrten Wohnlage in Hermsdorf, einer charmanten Stadt im Herzen Deutschlands. Die Umgebung überzeugt durch eine ausgezeichnete Infrastruktur sowie die unmittelbare Nähe zu wichtigen Einrichtungen des täglichen Bedarfs. Ein Kindergarten und eine Grundschule sind in wenigen...
Das Haus
Kategorie
Einfamilienhaus
Energie & Heizung
Warum sehe ich diese Anzeige? – Du siehst diese Anzeige basierend auf Ihrer Navigation auf unserer Website und den Suchkriterien, die du verwendet hast.
Weitere Energiedaten
Heizungsart
Fußbodenheizung, Luft-/Wasser-Wärmepumpe
Details
Objektbeschreibung
Ein Zuhause für Ihre Familie - mit ScanHaus sicher, schnell und sorgenfrei gebaut
Für viele junge Familien ist der Bau eines Einfamilienhauses mehr als ein Bauprojekt - es ist der Wunsch nach einem Zuhause, das Raum für die Kinder, einen Garten und Stabilität für die Zukunft bietet. Doch gerade, wenn es das erste Eigenheim...
Ausstattung
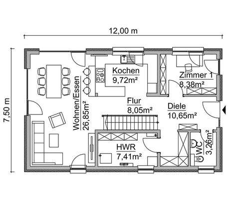
Mit einer Kniestockhöhe (Drempel) von 1,75 m im Dachgeschoss ist viel Platz gegeben bis unters Dach auf insgesamt 144 m² Wohnfläche.
Fünf Zimmer wurden hier wie folgt verplant: Das Erdgeschoss mit integrierter Treppenlösung im vorderen Wohnbereich zeigt modernes Wohnen mit einem offenen Wohn- Essbereich inklusive Küche...
Weitere Informationen
Sonstiges
Ihr Ansprechpartner:
Tobias Behrendt
Selbstständiger Handelsvertreter nach § 84 Abs. 1 HGB für ScanHaus Marlow GmbH
ScanHaus Marlow GmbH, Möritzscher Straße 22, 04435 Schkeuditz
Tel.: 0151 11 66 54 31
Mail: behrendt@scanhaus.de
Sonstiges:
ScanHaus Marlow ist nicht der Eigentümer des im...
Anbieter der Immobilie
Immobilienberatung Behrendt
Gohliser Straße 11, 04105 Leipzig
Online-ID: 2nmxl5v
Referenznummer: 678_SH145D_1
Finde Angebote wie dieses
Hier geht es zu unserem Impressum, den Allgemeinen Geschäftsbedingungen, den Hinweisen zum Datenschutz und nutzungsbasierter Online-Werbung.