

Kloster & Co. Immobilien GmbH
Herr Alex Kloster
004 ···
Nr. anzeigenPreise & Kosten
Provision für Käufer
3,57 inkl. ges. MwSt. inkl. MwSt.
Lage
Das Zweifamilienhaus befindet sich in einer ruhigen Wohngegend von Neudenau (Siglingen), einer charmanten Stadt im Herzen von Baden-Württemberg. Diese malerische Umgebung besticht durch ihre naturnahe Landschaft und bietet eine hohe Lebensqualität. Die Gegend ist bekannt für ihre freundliche Gemeinschaft und ist ideal für...
Das Haus
Kategorie
Mehrfamilienhaus
Baujahr
2015
Bezug
Sofort
Derzeitige Nutzung
vermietet
Energie & Heizung
Warum sehe ich diese Anzeige? – Du siehst diese Anzeige basierend auf Ihrer Navigation auf unserer Website und den Suchkriterien, die du verwendet hast.
Energieausweistyp
Bedarfsausweis
Gebäudetyp
Wohngebäude
Baujahr laut Energieausweis
2015
Wesentliche Energieträger
ELEKTRO
Gültigkeit
bis 11.11.2035
Effizienzklasse
A+
Endenergiebedarf
26,50 kWh/(m²·a)
Weitere Energiedaten
Energieträger
Elektro
Heizungsart
Luft-/Wasser-Wärmepumpe, Zentralheizung
Details
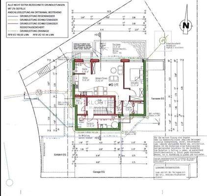
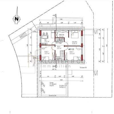
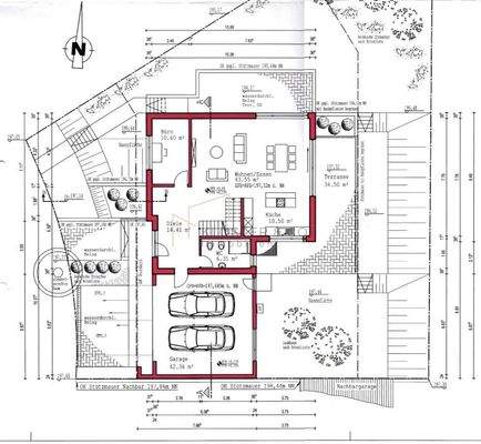
Objektbeschreibung
Zum Verkauf steht ein beeindruckendes Zweifamilienhaus in dem charmanten Ort Neudenau, das modernes Wohnen auf hohem Niveau bietet. Das im Jahr 2015 erbaute Haus präsentiert sich in neuwertigem Zustand und besticht durch seine gehobene Ausstattung sowie großzügige Raumaufteilung.
Die Immobilie verfügt über eine...
Ausstattung
Die Einliegerwohnung hat ca. 70 m² Wohnfläche, eine große Terrasse und einen PKW-Außenstellplatz und ist über einen separaten Hauseingang zugänglich.
Das Haus hat ca. 195 m² Wohnfläche, eine große Terrasse mit Grünanlage mit Gartenhäuschen, eine Doppelgarage vor dem Haupthaus und 2 PKW-Außenstellplätze.
Preisinformation
2 Stellplätze
2 Garagenstellplätze
Weitere Informationen
Sonstiges
Verfügbar ab sofort, bietet diese erstklassige Immobilie eine moderne Lebensumgebung, die sowohl Komfort als auch Nachhaltigkeit vereint. Der im Jahr 2015 errichtete Bau überzeugt durch eine zeitgemäße Architektur und hochwertige Ausstattung.
Der Energieausweis liegt in Form eines Bedarfsausweises vor. Ein...
Anbieter der Immobilie
Kloster & Co. Immobilien GmbH
Danziger Straße 53, 71638 Ludwigsburg

Online-ID: 2nmxe5w
Referenznummer: 25-115
Finde Angebote wie dieses
Hier geht es zu unserem Impressum, den Allgemeinen Geschäftsbedingungen, den Hinweisen zum Datenschutz und nutzungsbasierter Online-Werbung.