

DAHLER Hamburger - Sachsenwald
Frau Anna Leymann
+49 ···
Nr. anzeigenPreise & Kosten
Provision für Käufer
3,125% inkl. ges. MwSt. bezogen auf den Kaufpreis
Lage
Grönwohld im Kreis Stormarn bietet naturnahes Wohnen mit guter Anbindung an Hamburg und Lübeck. Kita und Grundschule befinden sich im Ort, weiterführende Schulen in Trittau. Einkaufsmöglichkeiten, Ärzte und Gastronomie sind schnell erreichbar.
Die Umgebung lädt zum Entspannen und Aktivsein ein: Badeseen wie Lütjensee...
Das Haus
Kategorie
Einfamilienhaus
Baujahr
2003
Derzeitige Nutzung
frei
Energie & Heizung
Warum sehe ich diese Anzeige? – Du siehst diese Anzeige basierend auf Ihrer Navigation auf unserer Website und den Suchkriterien, die du verwendet hast.
Energieausweistyp
Bedarfsausweis
Gebäudetyp
Wohngebäude
Baujahr laut Energieausweis
2003
Wesentliche Energieträger
ERDGAS_LEICHT
Gültigkeit
bis 13.08.2035
Effizienzklasse
C
Endenergiebedarf
75,39 kWh/(m²·a)
Weitere Energiedaten
Energieträger
Gas
Heizungsart
offener Kamin
Details
Objektbeschreibung
Dieses repräsentative Einfamilienhaus wurde 2003 nach den Plänen einer Architektin errichtet und steht auf einem ca. 1.816 m² großen Grundstück am Ende einer ruhigen Sackgasse mit privater Zufahrt.
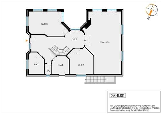
Erdgeschoss
.Helle Diele mit Zugang zum großzügigen Wohn- und Essbereich
.Kamin und große Fensterflächen mit Blick...
Ausstattung
.Bauweise: Massivbau "Stein auf Stein", Fassade aus weißem Kalksandstein-Verblendenmauerwerk, Walmdach mit Gauben und glasierten Dachsteinen (Anthrazit), Dachrinnen und Fallrohre aus Kupfer
.Fenster & Türen: 2-fach isolierverglaste Holzfenster (Fa. Lanz) mit elektrischen Rollläden, Sicherheitsbeschlägen...
Preisinformation
2 Stellplätze
Weitere Informationen
Stichworte
Anzahl der Schlafzimmer: 4, Anzahl der Badezimmer: 2, Anzahl der separaten WCs: 1, Anzahl Terrassen: 1, 1 Etagen
Anbieter der Immobilie
DAHLER Hamburger - Sachsenwald
Bahnsenallee 42, 21465 Reinbek

Online-ID: 2nmvy5n
Referenznummer: DC-SAW842
Finde Angebote wie dieses
Hier geht es zu unserem Impressum, den Allgemeinen Geschäftsbedingungen, den Hinweisen zum Datenschutz und nutzungsbasierter Online-Werbung.