

Franca Graf. Immobilienvermittlung
Herr Ralf Reichl
017 ···
Nr. anzeigenPreise & Kosten
Provision für Käufer
3% zzgl. gesetzl. MwSt
Lage
Moosach ist ein nordöstlich gelegener Stadtteil von München, welcher als ein lebendiger Stadtteil beste Infrastruktur bietet. Der tägliche Einkauf (Aldi, Rossmann ect.) kann direkt im Erdgeschoss erledigt werden und die am Haus liegende S- und U-Bahnstation sowie Tram garantieren minimalen Zeitaufwand zur Uni oder in die...
Die Wohnung
Wohnungslage
3. Geschoss
Wohnanlage
Energie & Heizung
Warum sehe ich diese Anzeige? – Du siehst diese Anzeige basierend auf Ihrer Navigation auf unserer Website und den Suchkriterien, die du verwendet hast.
Energieausweistyp
Bedarfsausweis
Gebäudetyp
Wohngebäude
Baujahr laut Energieausweis
2014
Gültigkeit
21.07.2014 bis 20.07.2024
Effizienzklasse
C
Endenergiebedarf
90,00 kWh/(m²·a)
Weitere Energiedaten
Energieträger
Gas
Heizungsart
Fußbodenheizung, Zentralheizung
Details
Objektbeschreibung
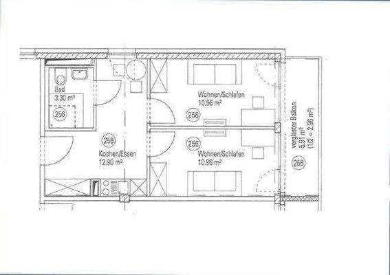
Das WG-Apartment mit zwei Zimmern und verglastem Balkon bietet lässigen Wohnkomfort. Angekommen im 3. Stock der gepflegten Wohnanlage „studiosus³“ öffnet sich die Tür zu dem ganz privaten Rückzugsort in der lebendigen Stadt.
Der Grundriss teilt sich in eine Ess-Diele, ein Duschbad und zwei Wohn-Schlafräume mit Zugang...
Weitere Informationen
Stichworte
Sonstiges: frei werdend
Dokumente
Anbieter der Immobilie

Online-ID: 2nmtf5l
Referenznummer: K-56.4
Finde Angebote wie dieses
Hier geht es zu unserem Impressum, den Allgemeinen Geschäftsbedingungen, den Hinweisen zum Datenschutz und nutzungsbasierter Online-Werbung.