

ImmoGrund Tegernsee
Frau Anna Aue
017 ···
Nr. anzeigenPreise & Kosten
Provision für Käufer
2,38% zzgl. MwSt.
Lage
Neuhaus liegt am südlichen Ende des Schliersees im Alpenvorland. Im Süden finden sich die Berge Brecherspitz, Spitzingsee-Plateau und Jägerkamp. Neuhaus/Schliersee - ein Outddor-Sportparadies:
See und Berge - das ist Lebensqualität für Sie!
Die Lage vom "Unser Schliers" könnte wohl kaum besser sein: zentral und...
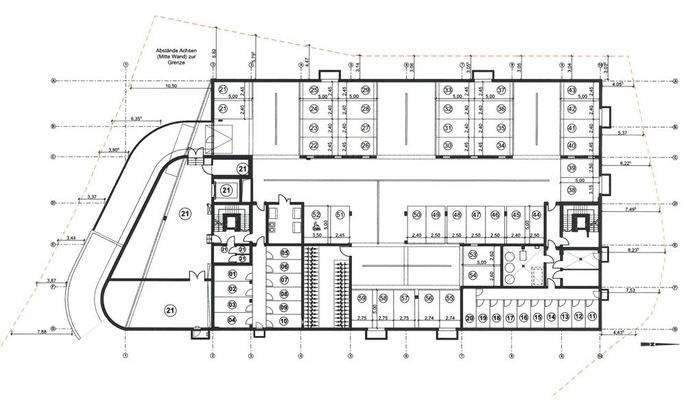
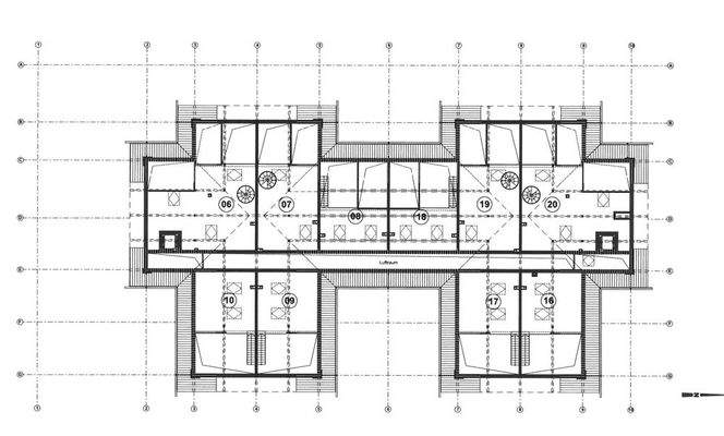
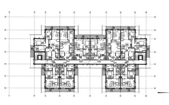
Die Wohnung
Wohnungslage
2. Geschoss
Bezug
ab sofort
Wohnanlage
Energie & Heizung
Warum sehe ich diese Anzeige? – Du siehst diese Anzeige basierend auf Ihrer Navigation auf unserer Website und den Suchkriterien, die du verwendet hast.
Energieausweistyp
Bedarfsausweis
Gebäudetyp
Wohngebäude
Wesentliche Energieträger
LUFTWP
Gültigkeit
bis 31.10.2028
Effizienzklasse
A+
Endenergiebedarf
18,00 kWh/(m²·a)
Weitere Energiedaten
Energieträger
Gas
Heizungsart
Fußbodenheizung, Luft-/Wasser-Wärmepumpe
Details
Objektbeschreibung
Hier fühlen Sie sich wohl - hohe Räume, viel Spielraum zum Gestalten!
Galeriebereich mit absolutem Privatbereich - Schlafzimmer en suite Bad mit freistehender Badewanne und viel Platz.
Der erfahrene Bauträger hat dieses Projekt mit großer Sorgfalt und Liebe zum Detail realisiert. Nutzen Sie die Chance, eine...
Ausstattung
Das Haus ist barrierefrei errichtet
Durchdachte Architektur und Raumgestaltung
Alle Bäder erhalten eine hochwertige Sanitärausstattung mit Elektro-Handtuchwärmer, bodengleiche Duschen mit Ganzglasabtrennung, freistehende Badewanne.
Bäder:
Bodenbelag mit Fliesen aus Feinsteinzeug 60 cm x 60 cm
Wände mit Fliesen...
Preisinformation
2 Tiefgaragenstellplätze, Kaufpreis je: 35.000,00 EUR
Weitere Informationen
Sonstiges
Alle Angaben sind ohne Gewähr und basieren ausschließlich auf Informationen, die uns vom Verkäufer zur Verfügung gestellt wurden. Darstellungen/Möblierungen sind Visualisierungen, die nur als Idee für den Käufer zur Verfügung stehen und nicht im Kaufpreis enthalten sind.
Die Grunderwerbsteuer, Notar- und...
Anbieter der Immobilie
ImmoGrund Tegernsee
Radlmaierweg 1, 83707 Bad Wiessee

Online-ID: 2nmt85s
Referenznummer: 66_7
Finde Angebote wie dieses
Hier geht es zu unserem Impressum, den Allgemeinen Geschäftsbedingungen, den Hinweisen zum Datenschutz und nutzungsbasierter Online-Werbung.