

GET YOUR HOME
Frau Lisa Drexler
017 ···
Nr. anzeigenPreise & Kosten
nicht in Nebenkosten enthalten
Kaution
2850
Warum sehe ich diese Anzeige? – Du siehst diese Anzeige basierend auf Ihrer Navigation auf unserer Website und den Suchkriterien, die du verwendet hast.
Lage
Die Wohnung befindet sich in einem ruhigen und gepflegten Wohngebiet im beliebten Stadtteil Nordlünen. Die Nachbarschaft ist geprägt von einer gewachsenen Wohnstruktur mit Ein- und kleineren Mehrfamilienhäusern und vermittelt ein angenehmes, überschaubares Wohnumfeld.
Abseits stark befahrener Straßen genießen Bewohner...
Die Wohnung
Wohnungslage
1. Untergeschoss (Souterrain)
Bezug
sofort
Derzeitige Nutzung
frei
Wohnanlage
Energie & Heizung
Warum sehe ich diese Anzeige? – Du siehst diese Anzeige basierend auf Ihrer Navigation auf unserer Website und den Suchkriterien, die du verwendet hast.
Energieausweistyp
Bedarfsausweis
Gebäudetyp
Wohngebäude
Baujahr laut Energieausweis
1976
Wesentliche Energieträger
Gas
Gültigkeit
18.11.2013 bis 12.02.2028
Effizienzklasse
E
Endenergiebedarf
148,00 kWh/(m²·a)
Weitere Energiedaten
Energieträger
Gas
Heizungsart
Zentralheizung
Details
Objektbeschreibung
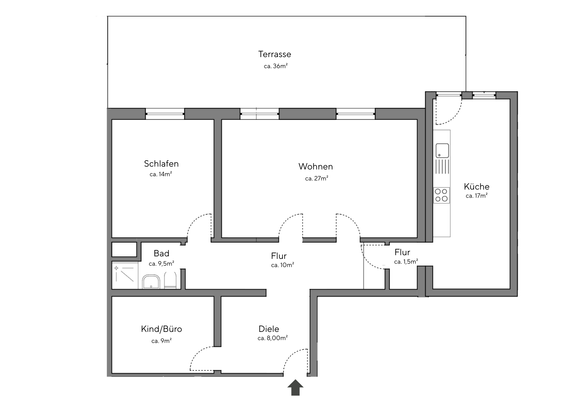
Diese frisch sanierte Souterrainwohnung befindet sich in einem gepflegten Mehrfamilienhaus mit nur 4 Wohneinheiten und liegt in einer ruhigen Wohngegend in Nordlünen.
Sie bietet Raum für individuelle Entfaltung und schafft eine moderne, angenehme Wohnatmosphäre mit vielseitigen Gestaltungsmöglichkeiten.
Die Wohnung...
Ausstattung
Ausstattungsmerkmale im Überblick
Immobiliendetails:
- Mehrfamilienhaus mit 4 Wohneinheiten
- 3 Zimmer, KDB
- Großzügiger Grundriss mit vielfältigen Gestaltungsmöglichkeiten
- 2026 umfassend saniert
- Eiche-Laminat in den Wohnräumen
- Ca. 36 m² große Terrasse
Für zusätzlichen Komfort gehört...
Weitere Informationen
Haben wir Ihr Interesse geweckt?
Gerne präsentieren wir Ihnen diese Immobilie im Rahmen eines persönlichen Besichtigungstermins. Termine können nach Absprache kurzfristig vereinbart werden.
Bitte nehmen Sie bei Interesse direkt Kontakt mit uns auf und übermitteln Sie uns Ihre vollständigen Kontaktdaten, damit wir...
Anbieter der Immobilie
GET YOUR HOME
Kreisstraße 64, 59379 Selm

Online-ID: 2nmsd5z
Referenznummer: 0032026
Finde Angebote wie dieses
Hier geht es zu unserem Impressum, den Allgemeinen Geschäftsbedingungen, den Hinweisen zum Datenschutz und nutzungsbasierter Online-Werbung.