

Paulick Thierfelder Immobilien GmbH
Herr Jannick Hannemann
034 ···
Nr. anzeigenPreise & Kosten
Provision für Käufer
3,57% inkl. ges. USt.
Abschreibung/Anlage
Denkmalschutz-Afa
Lage
Diese charmante Doppelhaushälfte befindet sich in einer attraktiven Wohngegend von Markkleeberg, der wohl beliebtesten Wohnlage vor den Toren Leipzigs. Die Umgebung zeichnet sich durch ihre ruhige und familienfreundliche Atmosphäre aus, während sie gleichzeitig eine hervorragende Anbindung an das Stadtzentrum bietet - in nur...
Das Haus
Kategorie
Doppelhaushälfte
Baujahr
1910
Bezug
nach Vereinbarung
Energie & Heizung
Warum sehe ich diese Anzeige? – Du siehst diese Anzeige basierend auf Ihrer Navigation auf unserer Website und den Suchkriterien, die du verwendet hast.
Energieausweis: für diesen Gebäudetyp nicht notwendig
Weitere Energiedaten
Energieträger
Gas
Heizungsart
Zentralheizung
Details
Objektbeschreibung
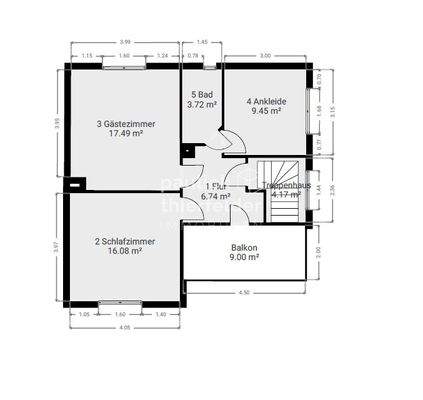
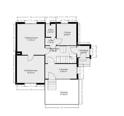
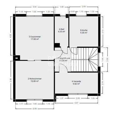
Entdecken Sie dieses charmante Denkmalobjekt: eine attraktive Doppelhaushälfte in begehrter Lage von Markkleeberg. Das 1910 erbaute Haus bietet bei historischen Flair großzügigen Raum zur modernen Neugestaltung. Auf drei Etagen bietet es eine großzügige Wohnfläche von ca. 193 m², verteilt auf sieben Zimmer und drei...
Preisinformation
1 Carportplatz
1 Garagenstellplatz
Weitere Informationen
Sonstiges
Weitere tolle Immobilienangebote finden Sie auch hier:
http://www.paulick-thierfelder.immo
Alle in diesem Angebot enthaltenen Angaben stammen ausschließlich vom Eigentümer (oder einem Dritten). Eine Haftung unseres Unternehmens hierfür ist ausgeschlossen. Die Flächeninhalte des Objekts sind...
Anbieter der Immobilie
Paulick Thierfelder Immobilien GmbH
Nordstraße 21, 04105 Leipzig

Online-ID: 2nmql5p
Referenznummer: 02099
Finde Angebote wie dieses
Hier geht es zu unserem Impressum, den Allgemeinen Geschäftsbedingungen, den Hinweisen zum Datenschutz und nutzungsbasierter Online-Werbung.