

K&S Immobilienberatung GmbH
Firma Ihr K&S Team
034 ···
Nr. anzeigenPreise & Kosten
Provision für Käufer
3,57 % vom Kaufpreis inkl. gesetzl. MwSt. inkl. MwSt.
Lage
Die Doppelhaushälfte befindet sich in Großzöberitz, einem Ortsteil der Stadt Zörbig. Die Lage in einer ruhigen Sackgasse sorgt für ein angenehmes und entspanntes Wohnumfeld ohne Durchgangsverkehr. Einkaufsmöglichkeiten, Schulen und Kindergärten sind in den umliegenden Ortschaften sowie im nahegelegenen Zörbig schnell...
Das Haus
Kategorie
Doppelhaushälfte
Baujahr
1938
Bezug
sofort
Energie & Heizung
Warum sehe ich diese Anzeige? – Du siehst diese Anzeige basierend auf Ihrer Navigation auf unserer Website und den Suchkriterien, die du verwendet hast.
Energieausweistyp
Bedarfsausweis
Gebäudetyp
Wohngebäude
Wesentliche Energieträger
OEL
Gültigkeit
bis 24.08.2035
Effizienzklasse
G
Endenergiebedarf
213,00 kWh/(m²·a)
Weitere Energiedaten
Energieträger
Öl
Details
Objektbeschreibung
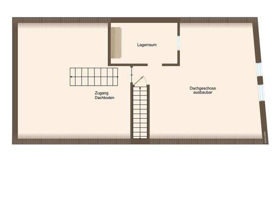
Diese Doppelhaushälfte in Großzöberitz wurde 1938 errichtet und bietet aktuell rund 78 m² Wohnfläche im Erdgeschoss. Durch den Ausbau des Dachgeschosses und des Dachbodens lässt sich die Wohnfläche jedoch erheblich erweitern - ideal für alle, die ihre eigenen Vorstellungen umsetzen und zusätzlichen Raum schaffen...
Ausstattung
- Baujahr 1938, Lehmbauweise
- Wohnfläche aktuell ca. 78 m² (nur EG ausgebaut)
- Dachgeschoss & Dachboden ausbaufähig (zusätzliche Wohnfläche möglich)
- Grundstück: ruhige Sackgassenlage
- voll unterkellert
- Erdgeschoss: 2 Zimmer, Küche, Bad
- zentrale Ölheizung von 1991
-...
Weitere Informationen
Sonstiges
Die Angaben zu dieser Immobilie beruhen auf Aussagen und Unterlagen des Eigentümers. Der Makler übernimmt für die Richtigkeit dieser Angaben keine Haftung.
Bei den im Exposé dargestellten Grundrissen handelt es sich ausdrücklich um Grundrissskizzen, die lediglich dem Verständnis der Raumaufteilung dienen...
Anbieter der Immobilie

Online-ID: 2nmql5k
Referenznummer: 11462
Finde Angebote wie dieses
Hier geht es zu unserem Impressum, den Allgemeinen Geschäftsbedingungen, den Hinweisen zum Datenschutz und nutzungsbasierter Online-Werbung.