
Fortica Real Estate GmbH
Frau Sandra Richter
+49 ···
Nr. anzeigenPreise & Kosten
Provision für Käufer
2,38 % inkl. MwSt.
Lage
Unmittelbar am Stadtpark Lichtenberg gelegen ist das Eckhaus Möllendorffstraße 138,139 / Parkaue 36 mit dem schönen Erkerturm schon von weitem sichtbar.
Direkt gegenüber befindet sich das Rathaus Lichtenberg, welches auch das Standes- und Bürgeramt des Stadtteils umfasst. Geht man von hier aus in Richtung Frankfurter...
Die Wohnung
Wohnungslage
1. Geschoss
Derzeitige Nutzung
vermietet
Wohnanlage
Energie & Heizung
Warum sehe ich diese Anzeige? – Du siehst diese Anzeige basierend auf Ihrer Navigation auf unserer Website und den Suchkriterien, die du verwendet hast.
Energieausweistyp
Bedarfsausweis
Gebäudetyp
Wohngebäude
Wesentliche Energieträger
Gas
Gültigkeit
05.12.2018 bis 05.12.2028
Effizienzklasse
D
Endenergiebedarf
115,00 kWh/(m²·a)
Weitere Energiedaten
Energieträger
Gas
Details
Objektbeschreibung
Das im Jahr 1890 errichtete, imposante Mehrfamilienhaus an der Ecke Möllendorffstraße und Parkaue, fällt schon von weitem durch seinen Erkerturm auf. Von der typischen Architektur des Jugendstils, die ihren ganz eigenen Charme hat, zeugen unter anderem Ornamente an den Fassaden und der helle Eingangsbereich. In den...
Ausstattung
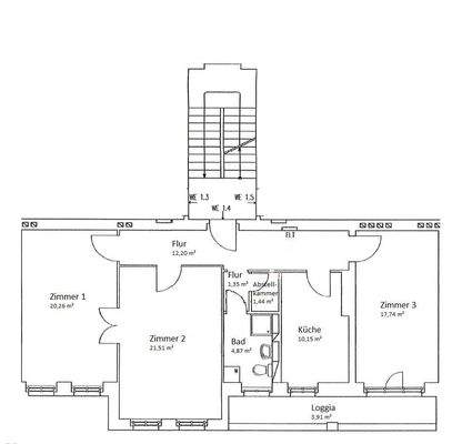
Die vermietete 3-Zimmerwohnung im 1. Obergeschoss des Vorderhauses besticht durch folgende Ausstattungsmerkmale:
- 3 Zimmer
- ca. 93 m²
- gefliestes Bad mit Dusche und Fenster
- Waschmaschinenanschluss im Bad
- Abstellkammer
- Stuckelemente im Kinder- und Schlafzimmer
- Doppelkastenfenster
-...
Weitere Informationen
Sonstiges
Gerne vereinbaren wir einen Besichtigungstermin mit Ihnen vor Ort.
Bitte senden Sie uns hierfür Ihre Kontaktdaten inklusive Emailadresse und Telefonnummer über das Kontaktformular zu oder auf dem telefonischen Wege unter: +49 30 403 684 290.
Anbieter der Immobilie
Fortica Real Estate GmbH
Naumannstraße 79 / Haus 38, 10829 Berlin
Online-ID: 2nmph54
Referenznummer: 15-9 WE 1.4
Finde Angebote wie dieses
Hier geht es zu unserem Impressum, den Allgemeinen Geschäftsbedingungen, den Hinweisen zum Datenschutz und nutzungsbasierter Online-Werbung.