
KREUZ IMMOBILIEN
Team Wohnen
004 ···
Nr. anzeigenPreise & Kosten
Provision für Käufer
3,57% inkl. der gesetzl. MwSt. des Kaufpreises
Lage
Rüsselsheim liegt mit seinen ca. 60.000 Einwohner zentral im Rhein Main Gebiet und hat den großen Vorteil durch seine direkte Autobahnanbindung an die A60, A67 und A671 die umliegenden Städte Mainz, Wiesbaden, Darmstadt und Frankfurt, wie auch den Flughafen Rhein Main in weniger als 30 Minuten zu erreichen. Ebenso bietet der...
Die Wohnung
Wohnungslage
2. Geschoss
Bezug
nach Absprache
Wohnanlage
Energie & Heizung
Warum sehe ich diese Anzeige? – Du siehst diese Anzeige basierend auf Ihrer Navigation auf unserer Website und den Suchkriterien, die du verwendet hast.
Energieausweistyp
Bedarfsausweis
Gebäudetyp
Wohngebäude
Baujahr laut Energieausweis
1970
Wesentliche Energieträger
GAS
Gültigkeit
bis 03.08.2028
Effizienzklasse
E
Endenergiebedarf
146,29 kWh/(m²·a)
Weitere Energiedaten
Energieträger
Gas
Heizungsart
Zentralheizung
Details
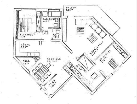
Objektbeschreibung
Diese renovierungsbedürftige 4-Zimmer-Etagenwohnung in Rüsselsheim bietet mit ca. 111 m² Wohnfläche und einer durchdachten Raumaufteilung ein attraktives Potenzial für Eigennutzer wie auch Kapitalanleger. Das Gebäude stammt aus dem Baujahr 1970 und umfasst insgesamt 3 Etagen. Die Wohnung überzeugt durch ihre großzügigen...
Ausstattung
- die Wohnung verfügt über 111 m² Wohnfläche
- großes Wohnzimmer mit Balkon umlaufend auf 2 Seiten mit Blick auf die Horlache
- 3-Schlafzimmer
- Küche
- Bad mit Wanne und Dusche
- Gäste-WC
- Speisekammer
- Abstellkeller
- 1 PKW Außenstellplatz
Den besten Eindruck erhalten Sie bei Ihrem...
Preisinformation
1 Stellplatz
Weitere Informationen
Sonstiges
Alle gemachten Angaben basieren auf Mitteilungen des Eigentümers. Diese werden durch uns gewissenhaft geprüft. Eine Haftung kann jedoch nicht übernommen werden. Änderungen, Irrtum, Zwischenverkauf bzw. Zwischenvermietung bleiben vorbehalten.
Bitte haben Sie Verständnis dafür, dass wir nur Anfragen...
Anbieter der Immobilie

KREUZ IMMOBILIEN
Am Schafsteg 1, 64569 Nauheim
Online-ID: 2nmnp5f
Referenznummer: 4095
Finde Angebote wie dieses
Hier geht es zu unserem Impressum, den Allgemeinen Geschäftsbedingungen, den Hinweisen zum Datenschutz und nutzungsbasierter Online-Werbung.