
PlanetHome Group GmbH
Andreas Köhler
+49 ···
Nr. anzeigenPreise & Kosten
Provision für Käufer
provisionsfrei
Lage
Waldperlach zeichnet sich durch eine äußerst familienfreundliche Umgebung aus - umgeben von großzügigen Wald- und Grünflächen, die zu erholsamen Spaziergängen, sportlichen Aktivitäten und entspanntem Verweilen in der Natur einladen. Die Lage vereint auf harmonische Weise die Vorteile des stadtnahen Lebens mit einer sehr guten...
Das Haus
Kategorie
Doppelhaushälfte
Baujahr
2026
Energie & Heizung
Warum sehe ich diese Anzeige? – Du siehst diese Anzeige basierend auf Ihrer Navigation auf unserer Website und den Suchkriterien, die du verwendet hast.
Energieausweistyp
Bedarfsausweis
Gebäudetyp
Wohngebäude
Gültigkeit
10.11.2025 bis 09.11.2035
Effizienzklasse
A+
Endenergiebedarf
24,70 kWh/(m²·a)
Weitere Energiedaten
Haustyp
Massivhaus
Energieträger
Elektro
Details
Objektbeschreibung
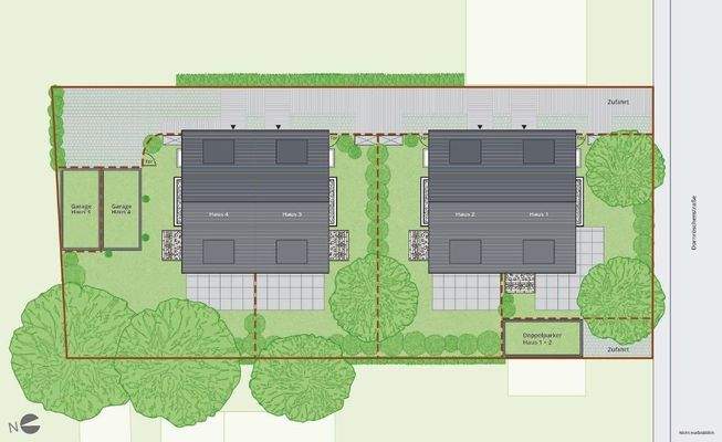
Lebensqualität beginnt hier - vier schlüsselfertige Neubau-Doppelhaushälften mit höchstem Wohnkomfort!
Die ca. 138,22 m² große Doppelhaushälfte (Haus 3) mit süd-westlich ausgerichtetem Garten und Einzelgarage (zzgl. 20.000,- EUR) in Waldperlach vereint modernen Wohnkomfort mit Nachhaltigkeit. Eingebettet in eine grüne...
Weitere Informationen
Stichworte
Garage vorhanden, Anzahl der Badezimmer: 2, Anzahl der separaten WCs: 1, Anzahl Terrassen: 1, 2 Etagen
Anbieter der Immobilie
PlanetHome Group GmbH
Feringastraße 11, 85774 Unterföhring
Online-ID: 2nmnl56
Referenznummer: 285945
Finde Angebote wie dieses
Hier geht es zu unserem Impressum, den Allgemeinen Geschäftsbedingungen, den Hinweisen zum Datenschutz und nutzungsbasierter Online-Werbung.