

RE/MAX Immobilien DeLux
Herr Sascha Wallerich
004 ···
Nr. anzeigenPreise & Kosten
Provision für Käufer
3,57%
Lage
Lockweiler ist ein Stadtteil von Wadern im Saarland, der sich südöstlich der Kernstadt an der Prims befindet. Der Ort liegt im nördlichen Grenzraum des Saar-Nahe-Berglands und ist von einer ländlichen Landschaft mit Wäldern und Hügeln geprägt. Zum Stadtteil Lockweiler gehören auch die Ortschaften Altland, Vogelsbüsch...
Das Haus
Kategorie
Mehrfamilienhaus
Baujahr
1960
Energie & Heizung
Warum sehe ich diese Anzeige? – Du siehst diese Anzeige basierend auf Ihrer Navigation auf unserer Website und den Suchkriterien, die du verwendet hast.
Energieausweistyp
Bedarfsausweis
Gebäudetyp
Wohngebäude
Baujahr laut Energieausweis
2009
Gültigkeit
bis 09.10.2034
Effizienzklasse
E
Endenergiebedarf
156,80 kWh/(m²·a)
Weitere Energiedaten
Energieträger
Öl, Solar
Details
Objektbeschreibung
Dieses beeindruckende Zweifamilienhaus aus dem Ursprungsbaujahr 1960, welches 1994 umfassend an- und umgebaut wurde, bietet außergewöhnlich viel Platz, vielseitige Wohnkonzepte und ein herrlich großes Grundstück von 1.528 m². Insgesamt stehen Ihnen ca. 323 m² Wohnfläche zur Verfügung - ideal für große Familien...
Ausstattung
144,91 m² angebaut 1994
Elektroarbeiten erneuert 1994
Heizung erneuert 2009
PV-Anlage 2009 verbaut 6,765KW
Malerarbeiten 2003
Dach teilweise erneuert 1994
Bad erneuert 2017
Balkon
Terrasse
angelegter Garten
3 Garagen
3 Aussenstellplatz
Kamin
Preisinformation
349.000,00, 3 Garagenstellplätze
Weitere Informationen
Sonstiges
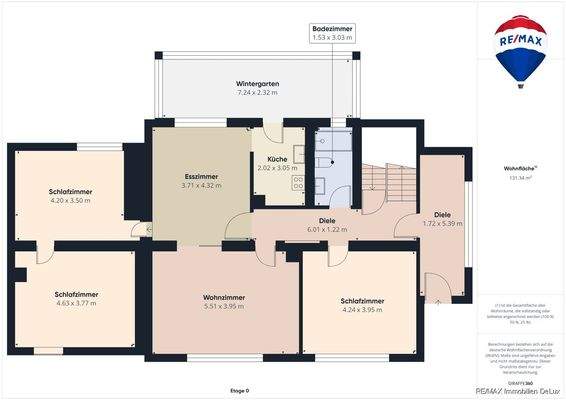
Die Grundrisse sind als Bilder im Expose eingefügt und dienen dazu Ihnen einen ersten Überblick zu verschaffen und sind nicht immer maßstabsgetreu.
Maklerprovision in Höhe 3,57% inkl. 19 % MwSt. vom Kaufpreis ist mit Abschluss des Kaufvertrages verdient und fällig. RE/MAX erhält einen unmittelbaren...
Anbieter der Immobilie
RE/MAX Immobilien DeLux
Am Viehmarkt 2, 66663 Merzig

Online-ID: 2nmm958
Referenznummer: 1128-129
Finde Angebote wie dieses
Hier geht es zu unserem Impressum, den Allgemeinen Geschäftsbedingungen, den Hinweisen zum Datenschutz und nutzungsbasierter Online-Werbung.