

Josef Holtrup Immobilien e.K.
Herr Sven Markert
0 2 ···
Nr. anzeigenPreise & Kosten
Provision für Käufer
3,57 % inklusive Mehrwertsteuer
Nach Abschluss eines notariellen Kaufvertrages wird eine Käuferprovision in Höhe von 3,57 % inkl. ges. MwSt. vom notariell beurkundeten Kaufpreis fällig. Weitere Informationen siehe Provisionshinweis.
Lage
Im Tal der Lippe, an der Nahtstelle zwischen Ruhrgebiet und Münsterland, liegt Bergkamen in unmittelbarer Nachbarschaft zu den Großstädten Hamm und Dortmund. An der nördlichen Stadtgrenze zu Werne finden Sie den Stadtteil Rünthe mit ca. 7.000 Einwohnern. In unmittelbarer Nähe wuchs die "Marina" Rünthe innerhalb weniger Jahre...
Das Haus
Kategorie
Doppelhaushälfte
Baujahr
1910
Bezug
sofort
Energie & Heizung
Warum sehe ich diese Anzeige? – Du siehst diese Anzeige basierend auf Ihrer Navigation auf unserer Website und den Suchkriterien, die du verwendet hast.
Energieausweistyp
Bedarfsausweis
Gebäudetyp
Wohngebäude
Wesentliche Energieträger
Erdgas schwer
Gültigkeit
15.01.2026 bis 14.01.2036
Effizienzklasse
F
Endenergiebedarf
160,90 kWh/(m²·a)
Details
Objektbeschreibung
In der Beverstraße steht diese 1 ½ -geschossige Doppelhaushälfte auf einem ca. 572 m² großen, zum Südosten ausgerichteten Grundstück. Mit einer Wohn-Nutzfläche von ca. 112 m² und einer übersichtlichen Raumaufteilung ist dies das passende Objekt für die kleine Familie. Hier erwerben Sie ein charmantes Zechenhaus in gewachsener...
Ausstattung
Das Haus wird mit einer Gasbrennwertheizung mit Warmwasseraufbereitung aus dem Jahr 2015 beheizt.
* EG: Wohn- / Esszimmer mit Ausgang auf die überdachte Terrasse und in den Garten, Küche mit anliegendem Hauswirtschaftsraum
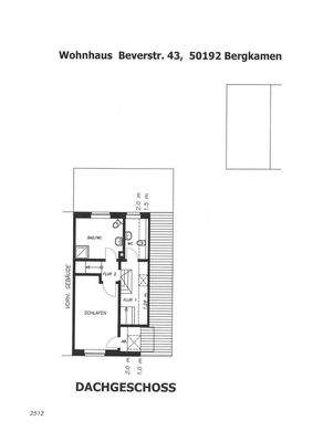
* DG: Schlafzimmer, Gäste WC, und Badezimmer mit Dusche, Waschbecken und WC.
* Spitzboden:...
Preisinformation
1 Garagenstellplatz
Weitere Informationen
Provisionshinweis
3,57 % inklusive Mehrwertsteuer
Nach Abschluss eines notariellen Kaufvertrages wird eine Käuferprovision in Höhe von 3,57 % inkl. ges. MwSt. vom notariell beurkundeten Kaufpreis fällig. Der Immobilienmakler hat einen provisionspflichtigen Maklervertag mit dem Verkäufer in gleicher Höhe...
Anbieter der Immobilie
Josef Holtrup Immobilien e.K.
Stockumer Straße 30, 59368 Werne

Online-ID: 2nml558
Referenznummer: 754
Finde Angebote wie dieses
Hier geht es zu unserem Impressum, den Allgemeinen Geschäftsbedingungen, den Hinweisen zum Datenschutz und nutzungsbasierter Online-Werbung.