

DAHLER Potsdam | Berlin-Wannsee | Kleinmachnow
Frau Alana Sieske
033 ···
Nr. anzeigenPreise & Kosten
Provision für Käufer
3,57 % inkl. MwSt. bezogen auf den beurkundeten Kaufpreis
Lage
Stahnsdorf ist eine Gemeinde mit ca. 16.500 Einwohnern am südwestlichen Stadtrand von Berlin. Sie liegt auf dem sogenannten "Teltow", einer südlich des Spreetals gelegenen Hochfläche, die im Westen von Nuthe und Havel umgeben ist. Der Ortsteil Stahnsdorf befindet sich an einer historischen, aus Leipzig kommenden Handelsstraße...
Das Haus
Kategorie
Villa
Baujahr
1937
Bezug
Nach Vereinabrung
Energie & Heizung
Warum sehe ich diese Anzeige? – Du siehst diese Anzeige basierend auf Ihrer Navigation auf unserer Website und den Suchkriterien, die du verwendet hast.
Energieausweistyp
Bedarfsausweis
Gebäudetyp
Wohngebäude
Baujahr laut Energieausweis
1937
Wesentliche Energieträger
GAS
Gültigkeit
bis 29.09.2035
Effizienzklasse
E
Endenergiebedarf
157,00 kWh/(m²·a)
Weitere Energiedaten
Energieträger
Gas
Heizungsart
Zentralheizung
Details
Objektbeschreibung
Willkommen in Ihrem neuen Zuhause - einem großzügigen, freistehenden Einfamilienhaus auf einem rund 1.410 m² großen Grundstück mit einem wunderschönen Garten, gelegen in einer familienfreundlichen und ruhigen Wohnlage von Stahnsdorf. Die im Jahr 1937 erbaute Villa besticht durch ihren charmanten Stil der 1930er Jahre in...
Ausstattung
. Baujahr: 1937 - saniert 1994 bis 2018
. Großzügiges Einfamilienhaus mit gemütlichem, voll ausgestatteten Gästehaus
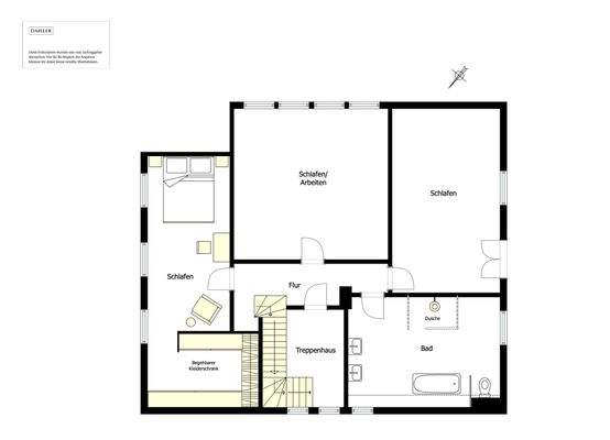
. Ca. 307 m² Wohnfläche verteilt auf 8 Zimmer zzgl. ca. 96 m² Nutzfläche
. Ca. 1.410 m² Grundstück
. Ca. 30 m² Gästehaus mit einer Einbauküche sowie einem Bad mit Badewanne
. Sehr gepflegter...
Preisinformation
3 Stellplätze
Weitere Informationen
Sonstiges
Ihre Werte sind bei uns in besten Händen
DAHLER ist auf die Vermittlung hochwertiger Wohnimmobilien in bevorzugten Lagen spezialisiert. Seit über 30 Jahren wird unser Unternehmen von Kirsten und Björn Dahler geführt und setzt mit Innovationskraft und Servicequalität Maßstäbe in der Branche. Unsere mehr als...
Anbieter der Immobilie

Online-ID: 2nml35y
Referenznummer: D-KLM8664-9-LIV
Finde Angebote wie dieses
Hier geht es zu unserem Impressum, den Allgemeinen Geschäftsbedingungen, den Hinweisen zum Datenschutz und nutzungsbasierter Online-Werbung.