

GFC Immobilien
Herr Günter Fischer
015 ···
Nr. anzeigenPreise & Kosten
Provision für Käufer
provisionsfrei
Lage
Durch die gute wirtschaftliche Lage der Region und der Ansammlung internationaler Firmen zeichnet diese sich auch mit einer geringen Arbeitslosigkeit aus.
Die Bundesautobahn 1 führt östlich an Cloppenburg vorbei, mit der Ausfahrt 63 Cloppenburg, die BAB 29 mit Anschluss nach Oldenburg und zur Nordseeküste ist in etwa...
Die Wohnung
Kategorie
Terrassenwohnung
Wohnungslage
Erdgeschoss
Wohnanlage
Energie & Heizung
Warum sehe ich diese Anzeige? – Du siehst diese Anzeige basierend auf Ihrer Navigation auf unserer Website und den Suchkriterien, die du verwendet hast.
Weitere Energiedaten
Energieträger
Elektro
Heizungsart
Fußbodenheizung, Luft-/Wasser-Wärmepumpe
Details
Objektbeschreibung
Das Doppelhaus auf einer Ebene, mit 4 Zimmern Platz für die ganze Familie.
Provisionsfrei direkt vom Bauträger!
Geringe Nebenkosten.
Luftwärmeheizung! Kein Gas, kein Öl.
Große PV Anlage auf dem Dach, mit dem eigenen Strom werden das Haus und die Heizung versorgt.
Tolle Lage nahe der...
Weitere Informationen
Sonstiges
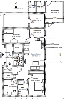
Zeichnungen sollen nur einen groben Überblick verschaffen und sind nicht immer Maßstabsgetreu. Bilder teilweise Beispielbilder aus vorherigen Bauten. Irrtümer und anderweitiger Verkauf bleiben vorbehalten. Bitte haben Sie Verständnis, dass nur Anfragen mit vollständigen Namen und Adressangaben beantwortet werden...
Anbieter der Immobilie

GFC Immobilien
Cappelnerstr. 42, 49692 Cappeln

Online-ID: 2nmkl5c
Finde Angebote wie dieses
Hier geht es zu unserem Impressum, den Allgemeinen Geschäftsbedingungen, den Hinweisen zum Datenschutz und nutzungsbasierter Online-Werbung.