
ohne-makler.net - Immobilien selbst vermarkten
Privat vom Eigentümer
Kontaktiere den Anbieter schriftlich, es ist keine Telefonnummer hinterlegt.
Preise & Kosten
Provision für Käufer
provisionsfrei
Lage
Lage:
Inmitten des Biosphärenreservats Bliesgau liegt die Gemeinde Mandelbachtal. Insbesondere der Ortsteil Ormesheim, bietet eine ruhige und familienfreundliche Wohnlage im Saarland und hat eine gute Infrastruktur mit Einkaufsmöglichkeiten, Ärzten und Schulen.
Die Anbindung an Saarbrücken ist zeitnah sowohl mit dem...
Das Haus
Kategorie
Bungalow
Baujahr
1971
Bezug
nach Absprache
Energie & Heizung
Warum sehe ich diese Anzeige? – Du siehst diese Anzeige basierend auf Ihrer Navigation auf unserer Website und den Suchkriterien, die du verwendet hast.
Weitere Energiedaten
Energieträger
Öl
Heizungsart
Zentralheizung
Details
Objektbeschreibung
Privatverkauf - Provisionsfrei!
Dieser im typischen Stil der 70er-Jahre gebaute und gepflegte Bungalow liegt am Ende einer Sackgasse, in einem bevorzugtem Wohngebiet von Ormesheim. Das ganze Gebäude ist massiv gebaut und außer der Garage voll unterkellert. Alle Wohnräume befinden sich auf einer Ebene, daher ist es...
Ausstattung
Terrasse, Garten, Keller, Duschbad, Einbauküche, Gäste-WC, Parkett, Teppichboden, Fliesen
Bemerkungen:
Auf einen Blick:
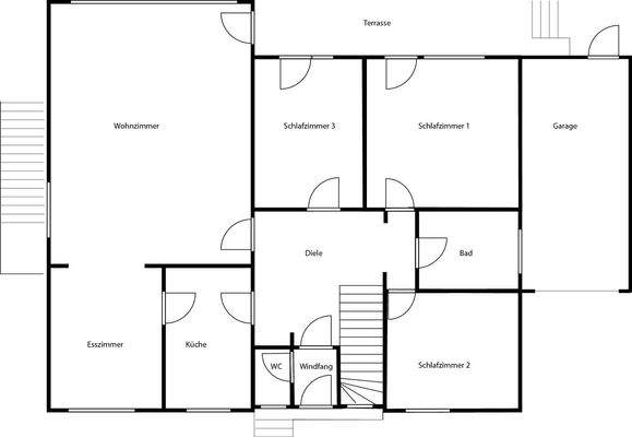
Wohnfläche: ca. 122 m² + ca. 45-60 m² im Untergeschoss
Grundstück: 714 m²
Raumaufteilung: EG: Wohn-Esszimmer mit Ausgang auf die Terrasse und Garten, Küche mit Einbauküche, Diele mit...
Preisinformation
2 Stellplätze
1 Garagenstellplatz
Weitere Informationen
Sonstiges
Heizungsart: Zentralheizung
Energieträger: Öl
Energieausweis nicht vorhanden
Makleranfragen nicht erwünscht. Nach § 7 UWG sind unaufgeforderte Kontaktaufnahmen durch Makler ohne ausdrückliche Einwilligung des Empfängers verboten!
ohne-makler (OM) ist weder Anbieter noch Vermittler der...
Anbieter der Immobilie
ohne-makler.net - Immobilien selbst vermarkten
Humboldtstr. 25 A, 21509 Glinde
Privat vom Eigentümer
Dein Ansprechpartner
Kontaktiere den Anbieter schriftlich, es ist keine Telefonnummer hinterlegt.
Online-ID: 2nmkj5j
Referenznummer: 402211
Finde Angebote wie dieses
Hier geht es zu unserem Impressum, den Allgemeinen Geschäftsbedingungen, den Hinweisen zum Datenschutz und nutzungsbasierter Online-Werbung.