
IMMOcontract Immobilien Vermittlung GmbH
Herr Tong Xu, B.A.
+43 ···
Nr. anzeigenPreise & Kosten
Provision für Käufer
3% des Kaufpreises zzgl. 20% USt.
Lage
Die verkehrsberuhigte Fahrbachgasse liegt in einer charmanten Einbahnstraße mit Übergang zur Begegnungszone und überzeugt durch urbane Erreichbarkeit, die unmittelbare Nähe zur Alten Donau sowie ein gewachsenes Bildungs- und Wohnumfeld mit hoher Lebensqualität.
Alles Wesentliche erreichen Sie bequem zu Fuß:
- 2...
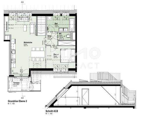
Die Wohnung
Wohnungslage
6. Geschoss (Dachgeschoss)
Bezug
sofort
Wohnanlage
Energie & Heizung
Warum sehe ich diese Anzeige? – Du siehst diese Anzeige basierend auf Ihrer Navigation auf unserer Website und den Suchkriterien, die du verwendet hast.
Heizwärmebedarf (HWB)
22,90 kWh/(m²·a)
Gesamtenergieeffizienz (fGEE)
0,71
Weitere Energiedaten
Energieträger
Fernwärme
Haustyp
Niedrigenergiehaus
Heizungsart
Fußbodenheizung
Details
Objektbeschreibung
Bezugsfertiges Wohnen nahe der Alten Donau
Willkommen in Ihrem neuen Zuhause! Diese zentral 3-Zimmer-Dachgeschosswohnung überzeugt mit rund 98?m² Wohnnutzfläche und einer besonders durchdachten Raumaufteilung - perfekt für Familien oder Paare, die ein komfortables Zuhause suchen. Die großzügige Wohnküche sowie...
Weitere Informationen
Stichworte
Fahrradraum, Nutzfläche: 98,29 m², Anzahl der Badezimmer: 2, Anzahl der separaten WCs: 1, Anzahl Terrassen: 1, Balkon-Terrassen-Fläche: 17,70 m², Kellerfläche: 3,61 m², Bundesland: Wien, 7 Etagen
Sonstiges/Wohnen: seniorengerechtes Wohnen
Anbieter der Immobilie
IMMOcontract Immobilien Vermittlung GmbH
Schnirchgasse 17, 1030 WIEN
Online-ID: 2nmha5t
Referenznummer: OBGC20260227205405086a1f104621f
Finde Angebote wie dieses
Günstige Immobilienfinanzierung einfach online berechnen
Persönliches Angebot berechnenWarum sehe ich diese Werbung? – Du siehst diese Werbung basierend auf Deiner Navigation auf unserer Website und der von Dir verwendeten Suchkriterien.
Diese Werbung wird bezahlt von durchblicker
Werbung melden
Hier geht es zu unserem Impressum, den Allgemeinen Geschäftsbedingungen, den Hinweisen zum Datenschutz und nutzungsbasierter Online-Werbung.