
McMakler GmbH
Ihr McMakler Team
080 ···
Nr. anzeigenPreise & Kosten
Provision für Käufer
Die Provision i.H.v. 3,57 % des Kaufpreises inkl. MwSt. ist mit Kaufvertragsbeurkundung fällig, sofern der Verkaufspreis über 83.000,00 € liegt.
Liegt der Verkaufspreis dagegen bei/unter 83. Weitere Informationen siehe Provisionshinweis.
Lage
Lage: Die naturnahe Lage bietet eine grüne Umgebung mit vielen Naherholungsmöglichkeiten
Bildung und Betreuung: Schulen und Kindergärten ca. 10-15 Autominuten entfernt
Nahversorgung: Ein Supermarkt in 9 km Entfernung und eine Apotheke in 9 km Entfernung
Anbindung: Autobahn komfortabel erreichbar - entspannte...
Das Haus
Kategorie
Einfamilienhaus
Baujahr
1949
Bezug
nach Absprache
Energie & Heizung
Warum sehe ich diese Anzeige? – Du siehst diese Anzeige basierend auf Ihrer Navigation auf unserer Website und den Suchkriterien, die du verwendet hast.
Energieausweistyp
Bedarfsausweis
Gebäudetyp
Wohngebäude
Baujahr laut Energieausweis
1949
Wesentliche Energieträger
Gas
Effizienzklasse
H
Endenergiebedarf
383,40 kWh/(m²·a)
Weitere Energiedaten
Energieträger
Gas
Details
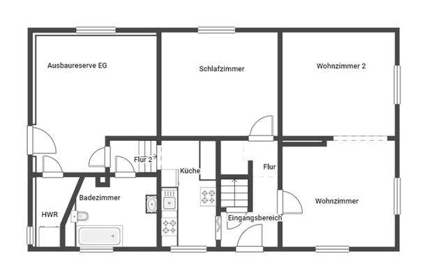
Objektbeschreibung
Objektnr: 1063398
In Spantekow, beschaulich und sicher in einer Nebenstraße, präsentiert sich diese Immobilie als Projekt für Anleger und Eigennutzer mit Nutzungs- und Gestaltungsoptionen. Herrlich naturnah präsentiert sich die Wohnlage, sodass Sie von einer ruhigen und grünen Umgebung profitieren. Dies spricht vor...
Ausstattung
+ In familienfreundlicher Umgebung in naturnaher Lage von Spantekow, beschaulich und sicher in einer Nebenstraße, empfiehlt sich das Objekt sowohl zum Vermieten als auch zur privaten Verwendung
+ Tolle Außenbereiche: Der teils sichtgeschützte Garten mit Teich auf ca. 2.086 m² großzügigem Grund lädt zum Verweilen ein
+...
Weitere Informationen
Provisionshinweis
Die Provision i.H.v. 3,57 % des Kaufpreises inkl. MwSt. ist mit Kaufvertragsbeurkundung fällig, sofern der Verkaufspreis über 83.000,00 € liegt.
Liegt der Verkaufspreis dagegen bei/unter 83.000,00 €, ist die fest vereinbarte Mindestprovision i.H.v. mind. 5.950,00 € inkl. MwSt. mit...
Anbieter der Immobilie
McMakler GmbH
Am Postbahnhof 17, 10243 Berlin
Online-ID: 2nmgb5w
Referenznummer: 31ea9797f4
Finde Angebote wie dieses
Hier geht es zu unserem Impressum, den Allgemeinen Geschäftsbedingungen, den Hinweisen zum Datenschutz und nutzungsbasierter Online-Werbung.