

Alpen-Immo GmbH
Frau Hela Cardinal von Widder
+49 ···
Nr. anzeigenPreise & Kosten
Provision für Käufer
3,57% inkl. 19% MwSt. vom Gesamtkaufpreis
Mit Abschluss des Kaufvertrages wird eine Käufer-Provision in Höhe von 3,57% inkl. 19% MwSt. des Kaufpreises an den Makler fällig.
Lage
Die Marktgemeinde Schliersee mit seinen ca. 6.750 Einwohnern befindet sich im Landkreis Miesbach, nicht weit entfernt von der Kreisstadt Miesbach und direkt in der Tourismusregion Tegernsee-Schliersee. Es gibt einen Kindergarten in der Ortsmitte von Schliersee, einen weiteren im Ortsteil Neuhaus. Die Grund- und Mittelschule...
Das Grundstück
Details
Objektbeschreibung
Ein Baugrundstück für alle, die größer denken - und individueller wohnen wollen.
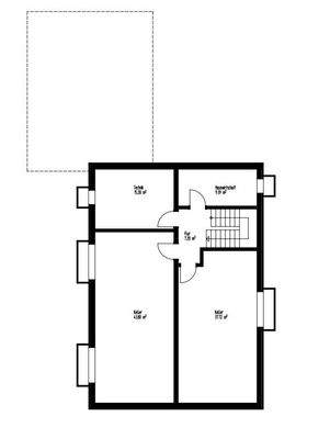
Am Ende einer ruhigen Sackgasse erwartet Sie ein außergewöhnliches Grundstück mit rund 890?m² Fläche und der Möglichkeit, ein großzügiges Einfamilienhaus mit bis zu 228,9?m² Wohnfläche zu realisieren - inklusive vollwertigem Keller und...
Ausstattung
Ein ausführliches EXPOSÉ erhalten Sie gerne bei Absendung des nebenstehenden Kontaktformulars über das Auswahlfeld "Anbieter kontaktieren".
Preisinformation
2 Stellplätze
Weitere Informationen
Sonstiges
Wir freuen uns auf Ihre Kontaktaufnahme - bitte ausschließlich online über den nebenstehenden NACHRICHT - BUTTON.
Bitte beachten Sie, dass Ihre Anfrage im ersten Schritt aufgrund von Datenschutzbestimmungen nur in dieser Form bearbeitet werden kann.
Dieses Exposé dient nur zur Information und stellt...
Anbieter der Immobilie

Online-ID: 2nmg953
Referenznummer: 789
Finde Angebote wie dieses
Hier geht es zu unserem Impressum, den Allgemeinen Geschäftsbedingungen, den Hinweisen zum Datenschutz und nutzungsbasierter Online-Werbung.