
ohne-makler.net - Immobilien selbst vermarkten
Privat von Martina Anna Wimmer
Kontaktiere den Anbieter schriftlich, es ist keine Telefonnummer hinterlegt.
Preise & Kosten
Provision für Käufer
provisionsfrei
Lage
Die Immobilie liegt in der Bachemer Straße im Herzen von Köln-Lindenthal - einem Stadtteil, der seit Jahrzehnten für seine besondere Wohnqualität, seine gewachsene Struktur und seine angenehme Atmosphäre geschätzt wird. Lindenthal verbindet auf harmonische Weise urbanes Leben mit grüner Ruhe und gehört zu den begehrtesten...
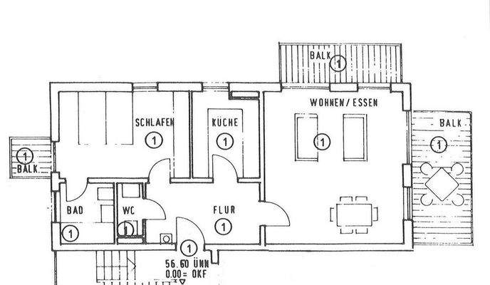
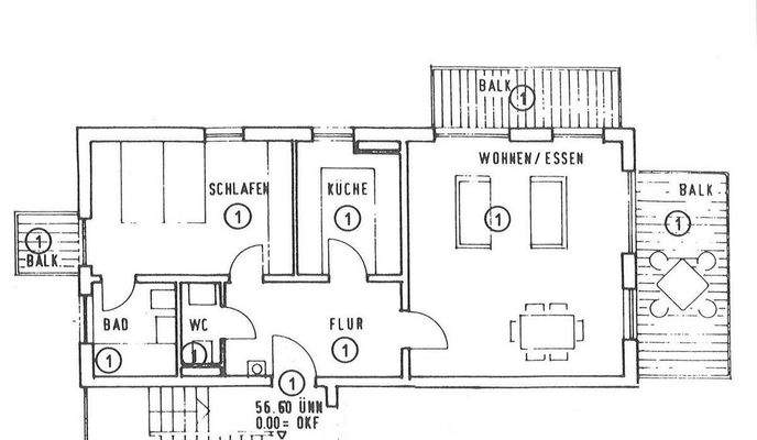
Die Wohnung
Wohnungslage
Erdgeschoss
Bezug
nach Absprache
Wohnanlage
Energie & Heizung
Warum sehe ich diese Anzeige? – Du siehst diese Anzeige basierend auf Ihrer Navigation auf unserer Website und den Suchkriterien, die du verwendet hast.
Energieausweistyp
Verbrauchsausweis
Gebäudetyp
Wohngebäude
Effizienzklasse
E
Endenergieverbrauch
139,00 kWh/(m²·a)
Weitere Energiedaten
Energieträger
Gas
Heizungsart
Fußbodenheizung
Details
Objektbeschreibung
Exklusive Gartenwohnung in Köln-Deckstein - provisionsfreier Privatverkauf
Exklusive Gartenwohnung in ruhiger Bestlage von Köln-Deckstein direkt am Stadtwald
Manche Wohnungen sind mehr als nur ein Ort zum Wohnen.
Sie sind ein Rückzugsort, ein Stück Lebensqualität - ein Zuhause.
In einer der grünsten...
Ausstattung
Balkon, Garten, Keller, Vollbad, Einbauküche, Gäste-WC, Parkett, Fliesen
Bemerkungen:
Die Ausstattung dieser Gartenwohnung unterstreicht den hohen Anspruch an Qualität, Komfort und Wohnatmosphäre. Sämtliche Materialien wurden mit Blick auf Langlebigkeit, Ästhetik und ein stimmiges Gesamtbild ausgewählt.
Im...
Weitere Informationen
Sonstiges
Heizungsart: Fußbodenheizung
Energieträger: Gas
Makleranfragen nicht erwünscht. Nach § 7 UWG sind unaufgeforderte Kontaktaufnahmen durch Makler ohne ausdrückliche Einwilligung des Empfängers verboten!
ohne-makler (OM) ist weder Anbieter noch Vermittler der Immobilie. OM betreibt eine...
Dokumente
Anbieter der Immobilie
ohne-makler.net - Immobilien selbst vermarkten
Humboldtstr. 25 A, 21509 Glinde
Privat von Martina Anna Wimmer
Dein Ansprechpartner
Kontaktiere den Anbieter schriftlich, es ist keine Telefonnummer hinterlegt.
Online-ID: 2nmdx5c
Referenznummer: 425448
Finde Angebote wie dieses
Hier geht es zu unserem Impressum, den Allgemeinen Geschäftsbedingungen, den Hinweisen zum Datenschutz und nutzungsbasierter Online-Werbung.