
Crozilla.com
Opereta
+38 ···
Nr. anzeigenPreise & Kosten
Provision für Käufer
Bitte beachte, das Angebot kann bei Vertragsabschluss die Zahlung einer Provision beinhalten. Weitere Informationen erhältst Du vom Anbieter.
Die Wohnung
Wohnungslage
2. Geschoss
Wohnanlage
Details
Objektbeschreibung
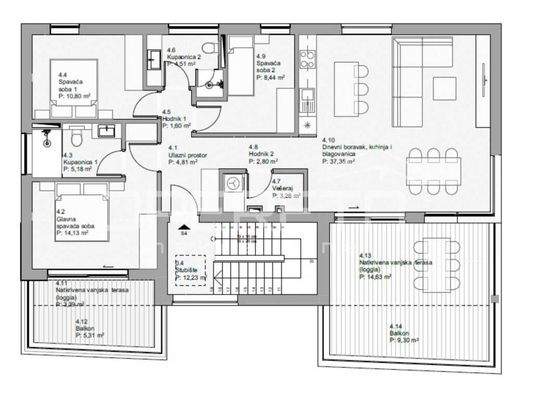
ZU VERKAUFEN, NEUGEBAUTES PENTHOUSE, INSEL PAG, POVLJANA
In ausgezeichneter Lage auf der Insel Pag in Povljana steht ein Penthouse in einem Neubau zum Verkauf. Die Rohbauphase ist abgeschlossen und voraussichtlich werden die Dachisolierung und die Zimmereiarbeiten durchgeführt. Die Wohnung befindet sich im zweiten Stock...
Weitere Informationen
Stichworte
Anzahl der Schlafzimmer: 3, Anzahl der Badezimmer: 2, 1 Etagen
Anbieter der Immobilie
Crozilla.com
Nova cesta 60, 10000 ZAGREB
Online-ID: 2nmdv5g
Referenznummer: 19356524_0
Finde Angebote wie dieses
Hier geht es zu unserem Impressum, den Allgemeinen Geschäftsbedingungen, den Hinweisen zum Datenschutz und nutzungsbasierter Online-Werbung.