
Neue Bitterfelder Wohnungs- und Baugesellschaft mbH
Vermietungsservice
034 ···
Nr. anzeigenPreise & Kosten
Warum sehe ich diese Anzeige? – Du siehst diese Anzeige basierend auf Ihrer Navigation auf unserer Website und den Suchkriterien, die du verwendet hast.
Lage
Die Wohnung befindet sich inmitten der Bitterfelder Innenstadt.
Umgeben von etlichen Alt- und Neubauten, dem historischen Marktplatz verbunden mit seinem Boulevard, der Grünanlage "Grüne Lunge" und natürlich dem Erholungszentrum Goitzsche bietet die Bitterfelder Innenstadt Abwechslung in jeder Hinsicht. Ob Sie gerne einen...
Die Wohnung
Wohnungslage
2. Geschoss
Bezug
sofort
Wohnanlage
Energie & Heizung
Warum sehe ich diese Anzeige? – Du siehst diese Anzeige basierend auf Ihrer Navigation auf unserer Website und den Suchkriterien, die du verwendet hast.
Weitere Energiedaten
Energieträger
Fernwärme
Details
Objektbeschreibung
Das Gebäude wurde 2023 komplett umgebaut und vollständig saniert. Durch den Umbau wurde das 'Tor zur Goitzsche' als Verbindung zwischen Innenstadt und Goitzsche ingesamt ansprechender gestaltet. Mit dem Umbau bzw. Teilrückbau der Objekte wurden nach dem Motto 'Weg vom Plattenbau, hin zu modernem Wohnraum' aus den ehemals 52...
Ausstattung
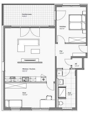
Lassen Sie den Tag auf Ihrer Dachterrasse gemütlich ausklingen!
Die 3-Raumwohnung befindet sich im 2. Obergeschoss. Bodentiefe Fenster lassen das Wohnzimmer noch größer und heller wirken. Das Bad ist mit einer Dusche und einer Badewanne ausgestattet, ebenso befindet sich der Waschmaschinenanschluss im Bad. Die Wohnung...
Preisinformation
Nettokaltmiete: 1.064,00 EUR
Weitere Informationen
Energiepass
Gültig bis: 06-2033
Stichworte
Fahrradraum, beheizbare Fläche: 92,52 m², modernisiert: 2023
Dokumente
Anbieter der Immobilie
Neue Bitterfelder Wohnungs- und Baugesellschaft mbH
Burgstraße 37, 06749 Bitterfeld-Wolfen
Online-ID: 2nmd756
Referenznummer: 1.821.9023
Finde Angebote wie dieses
Hier geht es zu unserem Impressum, den Allgemeinen Geschäftsbedingungen, den Hinweisen zum Datenschutz und nutzungsbasierter Online-Werbung.